首开缇香郡101平简欧风格案例赏析
发布时间:2020-05-10 12:01
案例详情 项目名称:首开缇香郡 设计风格:简欧风格设计单位:实创装饰集团整体家装:装修一口价、闭口合同家装类型:88理想装施工工期:50天工程面积:101平米房屋类型:2室1厅1厨1卫整体造价:72088元(设计+硬装)设计说明: 欧式的居室有的不只是豪华大气,更多的是惬意和浪漫。通过完美的典线,精益求精的细节处理,带给家人不尽的舒服触感,实际上和谐是欧式风格的最高境界。同时,欧式装饰风格最适用于大面积房子,若空间太小,不但无法展现其风格气势,反而对生活在其间的人造成一种压迫感。当然,还要具有一定的美学素养,才能善用欧式风格,否则只会弄巧成拙。

欧式的居室有的不只是豪华大气,更多的是惬意和浪漫。通过完美的典线,精益求精的细节处理,带给家人不尽的舒服触感,实际上和谐是欧式风格的最高境界。

门的造型设计,包括房间的门和各种柜门,既要突出凹凸感,又要有优美的弧线,两种造型相映成趣,风情万种。

在欧式风格的家居空间里,灯饰设计应选择具有西方风情的造型,比如壁灯,在整体明快、简约、单纯的房屋空间里,传承着西方文化底蕴的壁灯静静泛着影影绰绰的灯光,朦胧、浪漫之感油然而生。

欧式装饰风格最适用于大面积房子,若空间太小,不但无法展现其风格气势,反而对生活在其间的人造成一种压迫感。当然,还要具有一定的美学素养,才能善用欧式风格,否则只会弄巧成拙。

首开缇香郡101平简欧风格案例赏析户型图

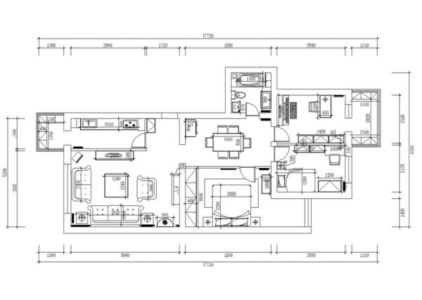
首开缇香郡101平简欧风格案例赏析户型图
网址:首开缇香郡101平简欧风格案例赏析 https://www.jiaju82.com/news-view-id-701467.html