万科星园-地中海-两居室
发布时间:2020-05-10 13:01
案例详情 【北京实创装饰】万科星园地97平米地中海两居室装修效果图小 区:万科星园(朝阳)房屋状况:毛坯 建筑面积:97平米 户型结构:2室2厅1卫1厨装修风格:地中海风格装修模式:全包总 造 价:122630元装修公司:北京实创装饰有限公司(完美家装)包含项目(原装进口福乐阁墙漆、美标卫浴洁具、卢森地板、巴赫曼门 、马可波罗磁砖、东鹏墙磁砖、巴赫曼橱柜、卡乐威铝天花、吊顶、包立管、电视背景墙、沙发背景、垃圾清运、管理费、税金等)【设计理念】 业主是一位80后北漂族,“北京蓝”是北漂族一直期望的最佳空气状态,回到家中可以在自然的空间生活,所以设计师把本次案例定为地中海风格,向往自然,舒适的生活空间
地中海风格中色彩搭配比较丰富,电视背景墙采用的白色文化砖,搭配上蓝色拱门,海天一色、艳阳高照的纯美自然。
地面则为哑光仿古地砖。桌巾、沙发套、灯罩等均以低彩度色调和棉织品为主。
厨房当然必不可少吧台,开放式厨房使得整体空间效果更加宽敞,
榻榻米加上顶部吊顶,尽显蔚蓝色的浪漫情怀,
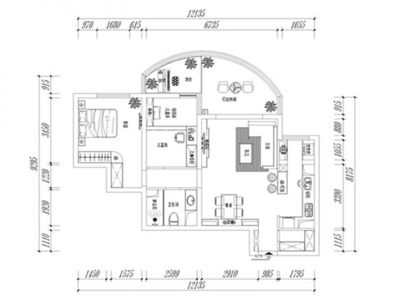
万科星园-地中海-两居室-户型图-原始户型图
网址:万科星园-地中海-两居室 https://www.jiaju82.com/news-view-id-701471.html

