龙湖好望山欧式三居
发布时间:2020-05-10 18:01
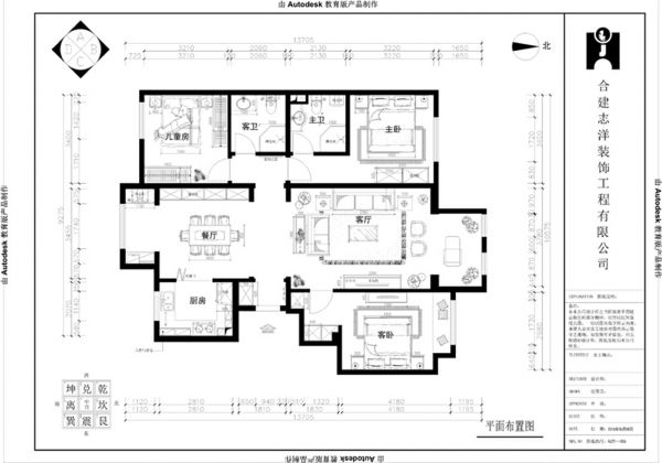
案例详情 业主需求: 男女业主经常去旅游,男业主和女业主都比较喜欢欧式风格,搭配自己的设计,呈现出欧式的风格。设计理念: 男女业主经常去旅游,男业主和女业主都比较喜欢欧式风格,搭配自己的设计,呈现出欧式的风格。预算说明:轻工辅料造价6.8万,主材12万

男女业主经常去旅游,男业主和女业主都比较喜欢欧式风格,搭配自己的设计,呈现出欧式的风格。?

男女业主经常去旅游,男业主和女业主都比较喜欢欧式风格,搭配自己的设计,呈现出欧式的风格。?

男女业主经常去旅游,男业主和女业主都比较喜欢欧式风格,搭配自己的设计,呈现出欧式的风格。?

男女业主经常去旅游,男业主和女业主都比较喜欢欧式风格,搭配自己的设计,呈现出欧式的风格。?

男女业主经常去旅游,男业主和女业主都比较喜欢欧式风格,搭配自己的设计,呈现出欧式的风格。?

男女业主经常去旅游,男业主和女业主都比较喜欢欧式风格,搭配自己的设计,呈现出欧式的风格。?

男女业主经常去旅游,男业主和女业主都比较喜欢欧式风格,搭配自己的设计,呈现出欧式的风格。?
网址:龙湖好望山欧式三居 https://www.jiaju82.com/news-view-id-701478.html