《蓝调摩登》130平后现代风格装修设计案例

客厅整体设计就像一副出彩的油画,蓝色的运用使得整个客厅空间显得很空灵,想必业主身处其中会有种在蓝天云端生活的感受吧~大大的落地窗给客厅带来充足的采光,让暗色系的家具也很有活力,站在落地窗前,观赏美景,实是人生乐事。原木色茶几和造型别致的躺椅让空间的每一寸都尽显艺术设计。电视柜与电视设计成一体,收纳的同时美观大方。空间设计的每一角都成就了艺术空间。

后现代设计主要是针对过分强调功能而使生活变成了一种机器运转般毫无感情色彩的动作而引发的一种设计倾向。厨房美食的天地总是丰富的,墙面的原木黄尽显成熟,联想到的是秋天的收获,在这蓝黄的世界里,总会令人食欲大增的。餐厅旁的装饰柜,增加储物空间的同时还为小家平添了许多生活情调,真是一举两得的好事情呀!

吃饭不仅仅是一个吞咽的过程,更是一种气氛:环境、餐具、甚至食物的颜色和味道。橱柜部分保持一致的色调,配上黑色铁艺复古灯,现代时尚的感觉无处不在。厨房的窗户不仅带来了充足的采光,还能保证厨房空气清新。厨房设计添加了吧台部分,可别小瞧了这个设计意味明显的吧台,除了起到隔断作用,共进早餐、谈天说地、兴致所至的小酌甚至共同讨论某一道菜的做法,这里都比传统厨房有了更多的交流机会。对于业主小夫妻而言,也是增加某种生活情趣的方式。在这样的厨房里,女主人们还会把做饭当做一项“任务”嘛~

卧室的设计依旧采用静谧蓝作为主基调,呈现一种宁静舒服的状态,墙面复古造型时钟、铁艺吊顶吊灯将后现代风格表现的淋漓尽致,其实本案的主卧空间不大,但是思雨设计耍了个“小花招”哟,把具有扩散效果明显的地毯放置于床下,造成更为宽大的视觉效果。哇,卧室真够大的,啧啧!文艺复古的挂画,洁白色的床单,带着温柔的慵懒,让人看一眼就想深陷其中,一本书,安静的躺在舒适的床上,呆在这样的环境,一天的劳累都可以消失殆尽。主卧在角落隔出一款空间作为卫浴间的设计,既独立又统一。

空间多处安装小射灯,一来不会因加灯饰而令空间加添局促感,二来射灯的灵活性可达到不同的灯光效果。打开射灯,可增添艺术魅力。对墙上的艺术挂画、饰品,能突出其观赏性,让其“暴露”淋漓尽致。除了留意设计美观之余,我们思雨设计师在实用性上也花了不少心思。客厅和主卧室顶面采用石膏板吊顶,考虑增强吊顶的抗裂性和防潮性。

推门而入是一个玄关柜,保护隐私的同时,美观大方,收纳功能节省空间。卧室里设计了主卫生间和衣帽间,方便的同时,收纳也做的非常好,书房的书柜设计也是将收纳发挥的淋漓尽致。整体布局的效果就是这个家能让他随时感到一种来自归属感的惬意,能让自己疲惫的身心到了这里后可以彻底的放松,即便简单也温馨。

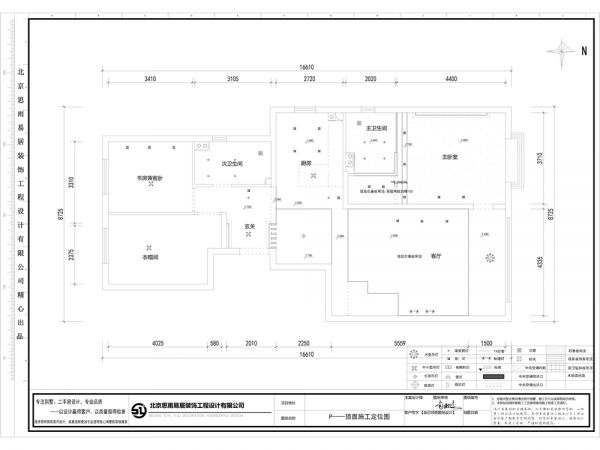
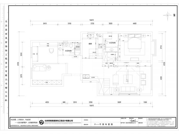
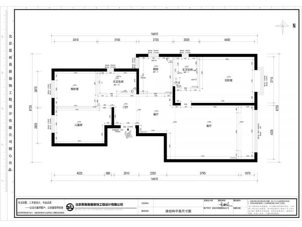
本案是一个复式公寓,整体看上去布局比较整洁,原始结构户型图能看出空间布局略为局促狭小,设计师经过设计改造,很好的利用了每一寸的空间。设计是一件“成人之美”的事,设计构思上除了要与它所出的环境衔接以外,最关键的是要对人在其中的生活采用恰当的叙述。全室以系统柜来构组收纳及展示机能,勾勒高端品味的质感。
网址:《蓝调摩登》130平后现代风格装修设计案例 https://www.jiaju82.com/news-view-id-701480.html