保利紫金香谷120平简欧风格案例赏析
发布时间:2020-05-10 19:01
案例详情 项目名称:保利紫金香谷 设计风格:简欧风格设计单位:实创装饰集团整体家装:装修一口价、闭口合同家装类型:88理想装施工工期:50天工程面积:120平米房屋类型:3室2厅1厨2卫整体造价:105088元(设计+硬装)设计说明: 此户型设计为简约欧式风格。客户为中年夫妇,喜欢白色干净整齐的空间,设计以白色简欧为主题加以简单的欧式罗马柱背景墙,局部用现代简约的镂空屏风和石膏板顶棚设计,使整个空间显得干净整洁又不失欧式的尊贵。

此户型设计为简约欧式风格。客户为中年夫妇,喜欢白色干净整齐的空间

更加向往清新自然、随意轻松的居室环境。越来越多的都城人开始摒弃繁缛豪华的装修,力求拥有一种自然简约的居室空间。

简约主义。以宁缺勿滥为精髓,合理的简化居室,从简单舒适中体现生活的精致。

设计以白色简欧为主题加以简单的欧式罗马柱背景墙,局部用现代简约的镂空屏风和石膏板顶棚设计,使整个空间显得干净整洁又不失欧式的尊贵。

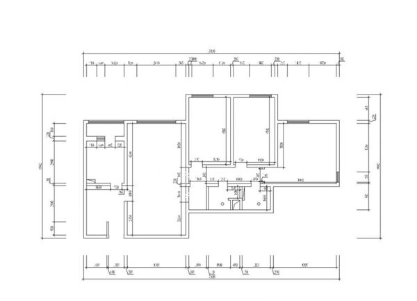
保利紫金香谷120平简欧风格案例赏析户型图

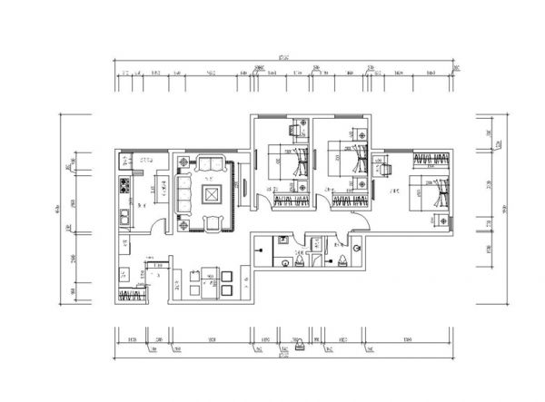
保利紫金香谷120平简欧风格案例赏析户型图
网址:保利紫金香谷120平简欧风格案例赏析 https://www.jiaju82.com/news-view-id-701482.html