紫金新干线二期90平简欧风格案例效果图
发布时间:2020-05-11 13:01
案例详情 项目名称:紫金新干线二期 设计风格:现代简约设计单位:实创装饰集团整体家装:装修一口价、闭口合同家装类型:688理想装施工工期:50天工程面积:90平米房屋类型:2室1厅1厨1卫整体造价:73032元(设计+硬装)设计说明:本案设计为简欧风格,欧式风格强调以华丽的装饰、浓烈的色彩、精美的造型达到雍容华贵的装饰效果。客厅背景部分喜用软包与镜面,并用华丽的枝形灯营造气氛。并用带有花纹的石膏线勾边。墙面壁纸,家具和软装饰来营造整体效果。让空间更显开阔明朗,这样巧妙运用既符合现代生活要求,幽静而又生动,恰到好处,又充满浪漫,和谐的生活气息。

现代人面临着城市的喧嚣和污染,激烈的竞争压力,还有忙碌的工作和紧张的生活。因而,更加向往清新自然、随意轻松的居室环境。

越来越多的都城人开始摒弃繁缛豪华的装修,力求拥有一种自然简约的居室空间。

少即是多,多即是少。如果发现自己的家被浓烈的世俗气息淹没了本属于你的独特气质和精致品位,那你可能是拥有的东西太多——书和杂志,家居办公用品和电脑设备,玩具总汇以及厨卫用具

在整体明快、简约、单纯的房屋空间里,传承着西方文化底蕴的壁灯静静泛着影影绰绰的灯光,朦胧、浪漫之感油然而生。

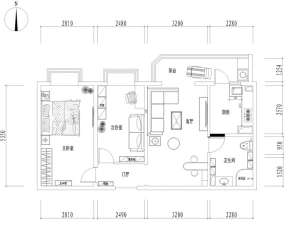
紫金新干线二期90平简欧风格案例赏析户型图
网址:紫金新干线二期90平简欧风格案例效果图 https://www.jiaju82.com/news-view-id-701595.html