新古典风格别墅
发布时间:2020-05-12 17:01
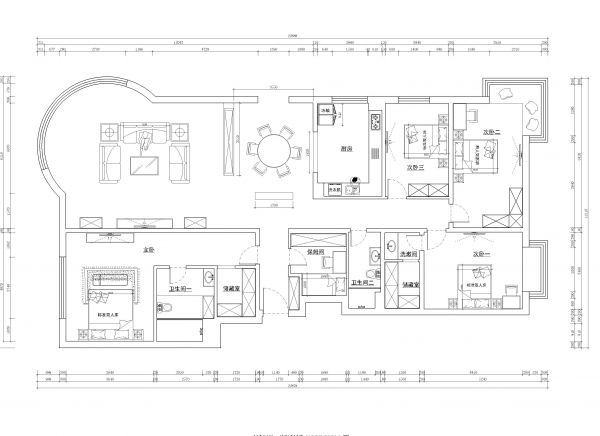
案例详情 业主需求:主人是位成功人士,商业的精英,通过装修能让客人感受到其主人的权利,地位以及品味,感觉奢华而不奢侈。主人认为客厅是展示其面貌的较好空间,但是其户型客厅面积足有80平米,看起来很是浪费,想通过设计师的专业手段将客厅规划。玄关正对着阳台门,比较忌讳,也是要通过设计的手段解决,这是男主人的整体要求。女主人的要求则在软装配饰上要求颇多,其本身也是品味十足,端庄大方。设计理念:预算说明:工程造价:15万

在追求细节精致的同时,突出简约舒适的实用功能,一方面保留了材质、色彩的大致风格,仍然可以很强烈地感受传统的历史痕迹与浑厚的文化底蕴,同时又摒弃了过于复杂的肌理和装饰,简化了线条。

在追求细节精致的同时,突出简约舒适的实用功能,一方面保留了材质、色彩的大致风格,仍然可以很强烈地感受传统的历史痕迹与浑厚的文化底蕴,同时又摒弃了过于复杂的肌理和装饰,简化了线条。

在追求细节精致的同时,突出简约舒适的实用功能,一方面保留了材质、色彩的大致风格,仍然可以很强烈地感受传统的历史痕迹与浑厚的文化底蕴,同时又摒弃了过于复杂的肌理和装饰,简化了线条。

华美的古典精髓,以浓厚的怀旧感情和大胆的革新精神将高雅的古典情趣和潇洒而精巧的现代手法融为一体,展现鲜明的时代气息的同时复活了古典主义的精魂。

华美的古典精髓,以浓厚的怀旧感情和大胆的革新精神将高雅的古典情趣和潇洒而精巧的现代手法融为一体,展现鲜明的时代气息的同时复活了古典主义的精魂。

华美的古典精髓,以浓厚的怀旧感情和大胆的革新精神将高雅的古典情趣和潇洒而精巧的现代手法融为一体,展现鲜明的时代气息的同时复活了古典主义的精魂。

华美的古典精髓,以浓厚的怀旧感情和大胆的革新精神将高雅的古典情趣和潇洒而精巧的现代手法融为一体,展现鲜明的时代气息的同时复活了古典主义的精魂。

新古典主义的灯具则将古典的繁复雕饰经过简化,并与现代的材质相结合。

网址:新古典风格别墅 https://www.jiaju82.com/news-view-id-701880.html