想要得到一个简约型的空间来得到一个心灵的放松
发布时间:2020-06-17 11:01
案例详情 以简约的表现形式来满足人们对于简约却不简单的居室环境的要求,由于现代人快节奏、高频率以及满负荷的生活节奏,导致了人们需要在一天的工作之余,想要得到一个简约型的空间来得到一个心灵的放松,希望能够在家中摆脱世俗的繁琐、复杂并且追求简单、自然的的生活状态。

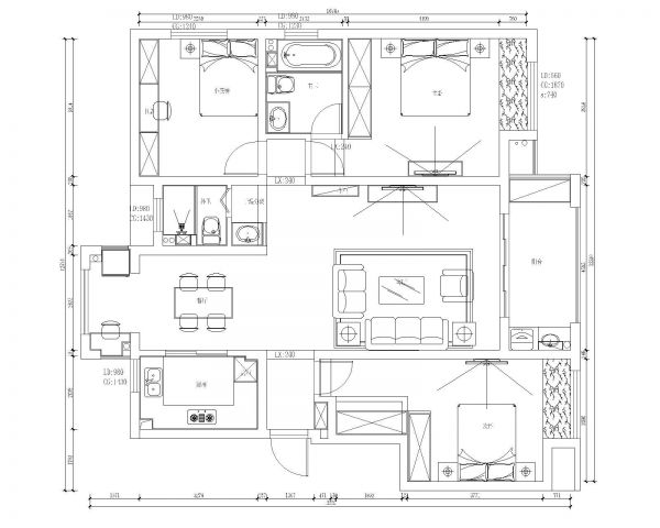
客厅灰色布艺沙发,咖色窗帘使空间温文尔雅。挂毯,旅途木框装饰画,小植物,懒人沙发在空间里伴出那星星点点的慵懒时光

儿童房衣柜结合书桌,即满足了储物的实用性,又节省了卧室的空间,灰度蓝墙面、大地色窗帘、动物森系风装饰画,使空间增加了小孩特有的纯真。

餐厅木色家具落于简单水彩挂画边,仿佛看到了自然、纯朴的云水谣。

厨房设计大多为简单的直线,横平竖直,减少不必要的装饰线条,用简单的直线强调空间的开阔感

主卧浅灰色墙面,麻布窗帘,灰色床品,自然风装饰画,整个空间简单到刚刚好。

户型:三室二厅 风格:现代 简约的表现形式来满足人们对于简约却不简单的居室环境的要求
网址:想要得到一个简约型的空间来得到一个心灵的放松 https://www.jiaju82.com/news-view-id-707361.html