东西外表的形象并不真实,真实的是东西内在的本
发布时间:2020-06-19 10:01
案例详情 “东西外表的形象并不真实,真实的是东西内在的本质”,尽量减少雕塑作品表面繁杂的细节,让作品更具有体量感,并不是形式主义的空洞,也不是追求极简主义,而是沉醉于一种概念里的淬炼与思考。

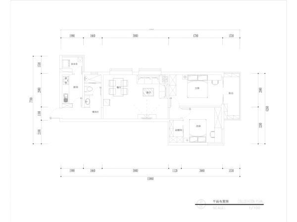
客厅设计说明:以居家延展生活场景的无限可能,呈现栖居的温度与灵动。客厅的弧形玻璃体块在白天通过引入自然光线消隐,自然调色让空间重返璞真自由。

卫生间设计说明:利用黑灰菱形地砖拼花跟灰色墙面相结合,为主卫浴空间营造简约大气的风格。

厨房设计说明:曲线设计延展厨房视野,设计师运用地板视觉认知作区分性设计,同时形塑了地面空间隔断。

主卧设计说明:墙边的置物柜柜门上几何图形的设计与墙上的镜子和浅绿色墙面搭配给人和谐舒适的感觉

雕塑手法赋予的切割的曲面勾勒室内空间,充当隔断弧线的墙体为原始体加持了柔软和愉悦感。
网址:东西外表的形象并不真实,真实的是东西内在的本 https://www.jiaju82.com/news-view-id-707846.html