35㎡现代北欧风公寓,1㎡都不浪费
发布时间:2020-06-26 10:00
案例详情 今天给大家分享一套面积只有35平米的小户型单身公寓,空间不大,但是通过设计师合理布局和搭配,使整个房子居住起来没有一丝紧凑感,看起来舒适又宽敞,感觉装得比大房子还好看。特别是收纳方面做得相当好,储物柜从进门厨房开始就一直延伸到客厅和卧室,储物性超强,还有卧室的设计也是绝了,地面就做了个小抬高,做成榻榻米地台床,既能睡觉休息,又能当休闲区,还带隐藏式收纳,你说实用不实用,一起看看就知道了。

客厅是走的简约小清新路线,沙发墙由蓝色、粉色、白色拼接而成,看起来有一种清清爽爽的感觉,还特别显温馨,侧面的墙上装了置物架点缀了墙面空间,避免空白墙面的单调。

吧台背面留了储物格,里面可以存放一些书籍杂质,方便阅读拿放。

卧室与客厅之间的地面做了两个台阶的小抬高,做成了榻榻米地台的形式,既是休闲区又是卧室。

沙发是采用折叠款式,有客人留宿的时候将沙发坐垫翻折过来就变成了一张小床,充当客卧功能,白天收起来又不占空间,对于小户型来讲特别实用。

卧室带了一道大大的飘窗,视野和采光效果都是相当好,窗帘的颜色与房间里的风格相互呼应,让整体看起来更加和谐。

开放和封闭柜门组合,功能分区明确,满足了不同的收纳需求。冰箱是嵌在电视墙和橱柜之间的,处于同一水平面上,给人感觉美观又规整。

将洗菜区、备餐区、烹饪区依次排开,井然有序,一点都不影响使用效果,而且上下都打满了吊柜和地柜,加上墙面上的开放置物格和挂杆,能充分满足厨房的收纳需求。

旁边就是客厅了,由橱柜延伸过来的电视墙做了储物柜的形式,满足了电视背景墙的造型需要,又增加了空间的储物收纳。

右手边是厨房,白色的橱柜显得干净明亮。一字型的橱柜布局非常适合小户型中的狭窄厨房。

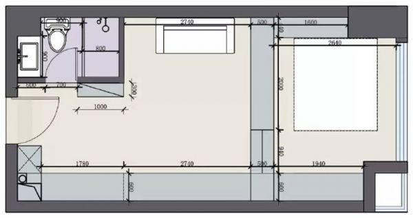
从户型图上看,玄关、厨房、卫生间、客厅、卧室基本的功能一样都不少,全部集中在这个仅有35平米的空间里面,设计师将空间利用到极致,看似很小,实际却感受不到它的拥挤,这就是巧妙利用空间的魅力所在。
网址:35㎡现代北欧风公寓,1㎡都不浪费 https://www.jiaju82.com/news-view-id-708865.html