67平的,阳台改成榻榻米,房型好方正
发布时间:2020-06-27 13:01
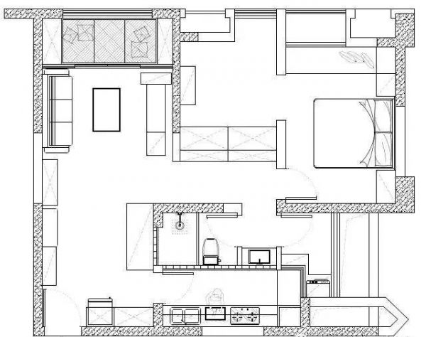
案例详情 今天分享的是一套建筑面积67平米的简约风小户型案例,设计师以淡蓝色作为主色调,整体营造出一种小清新的感觉。整个房子只做了一间主卧,留出了单独的衣帽间,还把阳台给改成了榻榻米,在设计上花了很多心思,入户的第一个空间就是餐厅,在入户门的左右两侧都做了收纳的设计,虽然没有玄关走廊,但设计师还是利用柜子和墙面来构造了一个玄关。

入户的第一个空间就是餐厅,在入户门的左右两侧都做了收纳的设计,到顶的柜子把冰箱也嵌入其中,木地板上墙的设计给餐厅带来温馨质感。

餐厅处选择了做个吧台餐桌,餐厅的旁边就是厨房和卫生间,运用碎玻璃作为隔断,让光线能流通起来,又能保证隐私性。

厨房是个狭长的空间,做了L型的橱柜布局,蓝色的橱柜搭配墙面蓝白灰的长条小砖,靠近卫生间的一侧做了整墙的碎玻璃隔断,整个厨房显得非常有设计感。

主卧室的空间比较宽敞,而且有个单独的衣帽间,所以卧室内部只需要摆放床、床头柜即可,靠窗设计一个休闲飘窗,显得更有情调。

卫生间内用浴帘来划分淋浴区,碎玻璃隔断做墙,让卫生间能够借到餐厅、厨房的光线,灰色的长条砖和地面花砖给卫生间带来更多的设计感。

客厅被屋主作为了一个阅读室、会客室来使用,两侧摆放沙发和长灯,沙发的背后还有长隔板书架,浅蓝色为主的设计显得格外小清新。

客厅外的阳台是被设计师改成了一个榻榻米地台,地台还带有一个升降台,和朋友在这里泡茶、打牌、聊天都非常合适。

通往卧室的走道空间也没有被浪费,在侧方做了嵌入式的到顶柜子,柜子顶部用玻璃作为隔断,中间留空也方便摆放常用物品。

虽然没有玄关走廊,但设计师还是利用柜子和墙面来构造了一个玄关,换鞋凳搭配挂衣钩,成品鞋柜满足收纳需求。

整个房子只做了一间主卧,留出了单独的衣帽间,还把阳台给改成了榻榻米,在设计上花了很多心思。
网址:67平的,阳台改成榻榻米,房型好方正 https://www.jiaju82.com/news-view-id-708896.html