89㎡小户型北欧风,禅意十足
发布时间:2020-06-28 15:01
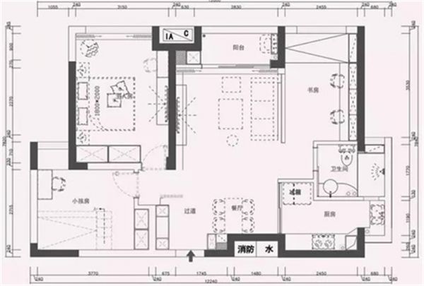
案例详情 屋主是一对新婚夫妻,女主人一直喜欢北欧风的简单自由,这次终于能给她圆梦,装出了梦想中的北欧风。一般情况下,人们都喜欢用隔断对各个功能区进行区隔,但是隔断用得不好往往会造成空间压抑感和视觉局限感。本案业主对隔断的使用设计可以说是非常厉害了,用隔断来划分功能区但又保证了室内开阔感。

客厅中延续北欧风格,去除多余的装饰,每一件家具,每一处软装都可以带来色彩。

主卧以原木色家具为主,配合亮蓝色的窗帘与床品,整个空间大气明亮。

客厅望向餐厅的方向,便可看到整个宜人居家的小天地,设计师以文艺白与原木色作为空间主导,以蓝、黄为空间调色,清爽简洁又颇有质感

小户型的客餐厅一体效果,视觉更为开阔,动线流畅,色彩、材质元素融入整个家居空间,更加具有整体感。

经典的白色与原木色相搭配,现代与自然的元素相结合,在餐桌边的墙上做了嵌入式小酒柜,节省空间的同时不失格调。

木纹砖的地面,跳色的茶几与抱枕,布艺的沙发和窗帘盒暗藏灯带的设计表现出欢快、简洁的北欧客厅。

客厅与厨房是开放式的布局,这样的设计满足了一体式的效果,使得整个空间更加开阔,动线流畅,将材质元素融入其中,更加具有整体感。

床头不想有太多的繁杂 ,只做了简单的壁灯装饰。床边的小书桌,精致的摆饰品,可以用来看书写字,也可以用来梳妆打扮。

白色的餐椅与原木色的餐桌相搭配,现代与自然元素相结合,利用进门的小空间做成内嵌式的柜子,满足了业主的储物需求。

做成的半高隔墙与原承重梁,用木饰面包裹起来,在空间上得到了视觉上的延伸,两个空间的光源相互通融交汇。
网址:89㎡小户型北欧风,禅意十足 https://www.jiaju82.com/news-view-id-709003.html