小户型逆袭爆改,颜值丝毫不输豪宅
发布时间:2020-06-28 19:01
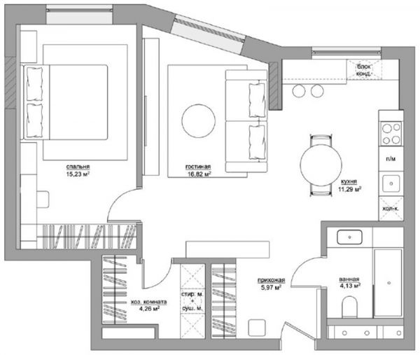
案例详情 这间面积53㎡的公寓,设计师用朴素的设计手法,打造出温暖而惬光线设定了空间的基本形式,揭示了纹理并营造了氛围。其他重要元素是简洁的体积,天然材料,清晰的物体几何轮廓,构图的自由度和灵活的氛围,利用自然光线,为室内带来通透明亮的视觉感受。在混乱的生活中,渴望找到一个和谐安宁的地方,这是我们每个项目背后的动力,重新思考空间的意义和每一个元素,在这里不会发现过多的装饰.

精致的一居室小公寓,采用爱丁堡蓝作为点缀,柔软的布艺沙发居于客厅中央,背靠餐厅,温馨舒适。

卫生间的石材均采用白色大理石纹路,细腻的大理石在阳光的照射下更加柔和。柜体则采用深色木纹,与整体风格相搭配。

餐厅与开放式厨房共处一个空间,橱柜配色低调,餐桌的造型和颜色则更为浓重。窗前定制了吧台区域,可作为日常小酌,也可做办公区使用。

带点轻奢元素的风格总的来说很清爽,是都市年轻人喜欢的调性,不会厚重又不会缺失质感,在同个空间中游走于稳重和甜美,也融合得恰到好处。

餐厨一体,整体简约素雅,在窗前做一个休闲空间, 非常赞的设计,层次丰富干净利落,时尚又不失品味!

卧室延续客厅的风格,白色和木色搭配简约温馨,构造出这样一个轻松、舒适的 卧室。

主卧室床头两侧的壁灯造型独特,在装饰不多的空间里,算是一丝点缀。定制了桌板与衣柜相连,占用很少一部分空间,满足了女主人对梳妆台的需求。

玄关区域定制了整面的鞋帽柜,内嵌在墙壁之中。侧面墙壁上定制的柜体向外延伸,形成区域分隔。

这种简约风格要求严格,并且要求完美的比例感 ,同时 赋予了空间自由,整体性和舒适宁静感。

开放式布局, 以胡桃木与白色形成对比,蓝色沙发显得时尚优雅,在满足功能区需求后,也需要拥有设计的亮点, 以最简单的设计与生活和谐相融。
网址:小户型逆袭爆改,颜值丝毫不输豪宅 https://www.jiaju82.com/news-view-id-709079.html