130平米现代简约案例
发布时间:2020-06-29 17:01
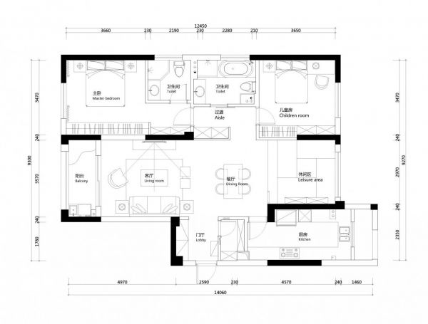
案例详情 业主需求:常住人口三人,孩子5岁,装修预算15万左右,室内面积为130平方米,要求日式简约风格,倾向于原木风,空间利用合理,温馨舒适。设计说明:原户型通透方正,承重墙较多,因此结构并无过多改动。向设备阳台借了一些空间,门厅和厨房整体右移,在玄关处“薅”出个杂物间。舍弃一个小房间,打造出一处休闲区,视觉上放大空间,大气敞亮。预算说明:工程造价:7.6万(不含主材)设计费用约5000元:主材由业主自行采购约8万元

粉色的公主城堡, 房间主体部分仍是原木色, 易变更部分如床品窗帘, 可以根据小朋友的喜好更换。

整个空间色调统一, 白色与原木色的搭配简单干净, 吊顶很好地平衡了颜色比例, 很佛很平静。 没有过多的装饰, 节制却精致。

日式小清新风, 小白砖营造复古潮流, 木色元素增添自然气息。 干湿分离,整洁易打理。

小面积的木栏划分空间 似隔非隔, 空间层次分明,不显压抑。 榻榻米的设计, 储物空间更加充足, 家人互动性也更强。 泡杯茶,看本书,讲个故事, 或者躺着晒太阳。

自然安宁的卧室, 营造理想的睡眠环境。 整面的储物柜保证房间的干净整洁。

客餐厅一体, 简单的木质餐桌椅, 质朴的吊灯, 彰显了主人平和的生活态度。 过道上点缀深蓝色门帘, 空间层次丰富起来, 也更显灵动飘逸。

白色的厨房, 视觉上大气整洁。 大理石地砖取代地板, 打理起来更加轻松。 小白砖错落, 黑色橱柜把手十分精致。

原户型通透方正,承重墙较多, 因此结构并无过多改动。 向设备阳台借了一些空间, 门厅和厨房整体右移, 在玄关处“薅”出个杂物间。 舍弃一个小房间, 打造出一处休闲区, 视觉上放大空间,大气敞亮。
网址:130平米现代简约案例 https://www.jiaju82.com/news-view-id-709235.html