85㎡现代混搭三居,超舒适
发布时间:2020-07-04 18:01
案例详情 见过很多谈论童年、童真的话题。曾经觉得长大是一件很神秘向往的事情,成年人世界的欲望与规则,看起来都无比独立自由。后来才发现长大就再也变不回年少,变不回无忧无虑的时刻。有人说,长大二字是没有偏旁的,自由二字看起来也条条框框。但能够经历与拥有那段岁月,能够将它们留存于记忆中,是弥足珍贵之事,永远乐观温柔,就是保持天真美好的方法。

整个空间明净干净,洋溢着一种阳光美好之感。运用活泼橙调、清新红调以及自然绿色,打造氧气美学空间。

另外一方面还设置了置物柜,纯白与玻璃搭配,精致优雅,既能收纳生活中的小物件,又能起到美观的作用,创意感满满呐。

餐厅选用简约餐桌椅,靠墙打造餐边柜,补充家里收纳空间,留空台面和搁板用于放置装饰品,精致美观。

实用与收纳布局上虽做得不太多,但很好满足休息放松的需求。

少量文艺北欧调穿插于沙发、地毯以及墙面设计,舒适自然,增强视觉上的美好感受。

餐厅于客厅一角,墙面做了视觉处理,有种几何设计美感。创意眼睛挂钟,可爱精致。吊灯也颇具文艺感,光晕包裹的时候,优雅浪漫感立现。

这间房本来想打造成榻榻米房,不过屋主不喜欢,就保留了常规床,另外在靠窗处打造衣柜和书桌柜,小小的空间几乎利用到极致。

次卧设计小飘窗设计不大,但温馨有爱,舒适自然,带来慵懒静谧舒适的睡眠环境。也于这样的家中永远保持一种纯真与热情。

主卧设计中运用了客厅等区域的活泼橙色,避免过多的纯白调带来的空白与视觉疲劳,带来新的创意美感。再者,条纹元素以及原木调,增强空间的明净自然。

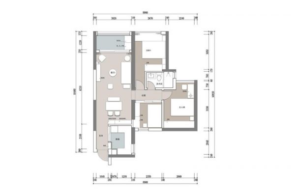
这是平面图,户型通透,全屋采光良好,设计师将一些细节上进行了调整优化,以满足屋主的需求。
网址:85㎡现代混搭三居,超舒适 https://www.jiaju82.com/news-view-id-709977.html