「ARTE MUNDI美学设计大赛」-领贤装饰 好又又
发布时间:2020-07-30 17:36
♦ 参赛设计师:
好又又
上海领贤装饰
♦ 设计说明:
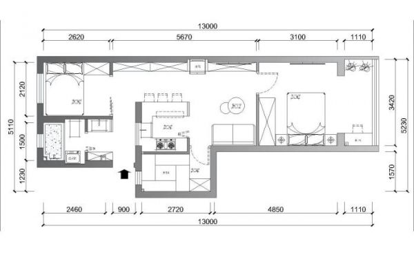
本案例为住宅空间:室内使用面积48平方
客户家庭成员以及需求:5口人(夫妻二人+两个小朋友:大宝约6岁 小宝约2岁+母亲)
当天上门测量 男客户开玩笑说:搞一个大通铺榻榻米睡在上门好了 ,像小时候一样,即可以满足睡觉,又可以满足储物~或者高低床 放在主卧拉个帘子也好呀,白天拉开也不影响,我们相视一笑,客户的需求是我们前进的动力。
与客户沟通下来基本需求:1.满足五个人正常休息,主卧+高低床可考虑 ;2.可以不要餐厅,在茶几上用餐 ;3.湖南人,爆炒 不能接受开放式厨房; 4. 通透 (风格简洁 明亮 可设计师发挥)。 设计师思路解析 1: 五口之家 必须三房 2:除每一间基本储物 需增加公共收纳 3:多功能餐厅需同时满足五人用餐 +客厅 4:房龄+安全因素很多墙不能拆改 但要南北通风 5:卫生间干湿分离 使用方便 5 卧室增加读书角
/////由小见大,细节决定成败!
♦ 作品展示:
项目照片:
平面改造图
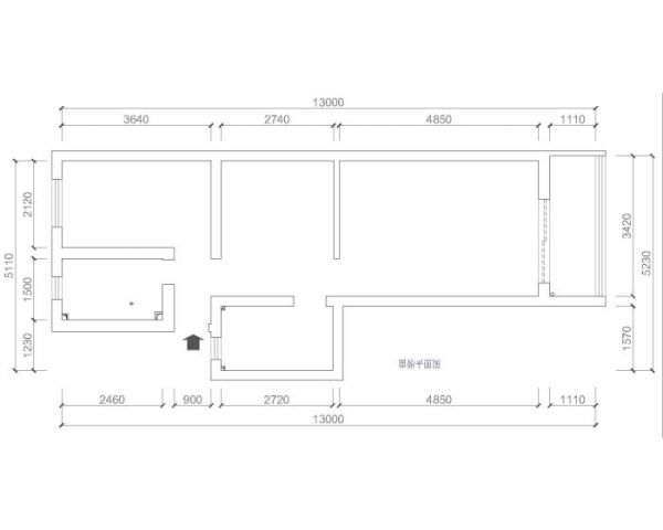
原始户型图
网址:「ARTE MUNDI美学设计大赛」-领贤装饰 好又又 https://www.jiaju82.com/news-view-id-714009.html

