115平舒适轻奢现代风
发布时间:2020-08-12 13:01
案例详情 现代轻奢风格,轻奢点亮家的美,定义你生活的态度,轻奢风的室内设计是高级色的结合 以极致简约风格为基础的通过一些精致的软装元素来凸显质感 同时也浓缩着意想不到的功能与细节,从而彰显了一种高级品质的生活,轻奢风格室内装修设计,带来良好的住宅体验。

床头吊灯在满足主人阅读照明的情况下,还不占用床头柜空间,给床头柜释放更多的置物空间。

卧室背景选用用深蓝色作为背景,不对称的挂画方式使卧室空间更富有活力。柔和的色差过度使得在入睡时更加容易放松。

餐厅放置长餐桌最多可容纳六人同时用餐,餐边柜开放格加柜门设计,使空间在视觉上有一个延伸的作用,同时也可满足主人储物和展示的功能性。

电视背景墙采用石膏线造型加深蓝色乳胶漆,壁灯的设计使背景墙更灵动,不会觉得那么死板。

客厅地面选用灰色釉面瓷砖,造型简洁的家具,布艺沙发,走进客厅空间凸显空间的温馨,整体色彩较为丰富,营造客厅的整体氛围,吊顶采用石膏板串边叠级吊顶的设计也别有一番韵味。

卫生间墙面地面使用灰色系釉面亮光瓷砖,浴室柜悬空更好清理,减少卫生间卫生死角。

储物式镜柜存放备用牙刷牙膏,钻石型淋浴房尽可能做到卫生间干湿分区。

淋浴房内利用包管道空间设计壁龛,洗发水 护发素随拿随放。

入户鞋柜设计师在格局上采用下面和中间镂空的做法,方便换鞋和临时放置拿取东西。外观上采用深色科技木纹和白色的撞色设计,也是当下比较流行的撞色的做法,时尚美观。

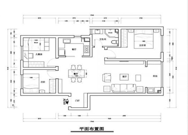
本案例为一套建筑面积115平方的三室两厅一厨一卫。设计上现代简约风,带来一种简洁舒适的优雅美。
网址:115平舒适轻奢现代风 https://www.jiaju82.com/news-view-id-715723.html