华耐设计基金《设计生长计划》|段智成:烟火气是给家最好的生命力
当设计扬帆起航,家居行业迎来了新一轮的设计驱动力。
设计与住的关系,设计与房子的关系,设计自身生长的问题,都发生了从量到质的改变。消费增长,层次多元,风格不定,在设计师的世界里,自我与外界,思想与行动,创新与挑战,时刻存在不断进化。
设计该被定义吗?设计的本质是什么?设计的未来在哪里?
华耐设计基金发起《设计生长计划》,让当下与未来链接,助力设计成长,挖掘设计力量,不设限不画框,启发思想,畅聊未来。
------------------------------------------------

段智成
设计师介绍:山西省是室内装饰协会会员设计师
太原意图国际装荣誉装饰
“小设计”微信公众号 独立撰稿人
山西省公益美术协会 荣誉会员
设计真言:烟火气”是给家最好的生命力真心话大冒险
Q:在设计工作中,你最看重的是一步是什么?为什么?
段段:个人最注重的其实是与客户相互的交流,以及客户对新家的期待。因为设计师更多的是带着“镣铐”跳舞,但所谓的镣铐也是让客户满意的“金镯子”。交流与互动是一个作品完美落地的前提。
Q:你怎么看待中国当前的设计行业现状?
段段:中国当前的室内设计行业现状,是会从80年代的黄金时期转变为白银时期。可惜作为90后的我并没有赶上黄金期,但我坚信白银时代一定需要更专业,更会表达的设计方来引领更开放,更透明的市场。
现阶段我们室内设计行业可能面临楼市的改革以及疫情的影响会陷入短暂的低迷,但换个角度来看各种受影响或者会让我们在蛰伏中重新审视问题。
Q:你对个人未来的设计职业规划是什么?
段段:个人的规划是希望能够通过文章或者视频的方式帮助更多的从事室内设计的后浪们,规避现有市场上的各种恶性循环。另外更为落地的想法是让自己的公众号“小设计”,让更多的人所熟知。Q:你最崇尚的一个当代设计师是谁?或者推荐一本你正在看的设计类书籍?
段段:我个人比较喜欢日本的佐藤大。最近看的一本书是《怪诞行为学》虽然与设计无关,但是从不同的书籍中可以看到不同的思维逻辑,个人感觉还挺有趣的。如果是设计类的书籍可以看一下《深泽直人》,如果真的喜欢设计这本书可在您做完“行活”时,它可以激发你对设计的热情。
作品见真章:113平的小家里,怎么生出烟火气?
烟火气是什么?
对于人类这个演变了千年,站在了食物链顶端的群体来说,烟火气就是有屋防冷,有被避体,有家暖心。家对于人类的印象已随着时间的演变深刻在灵魂深处,家的温度决定了居住者的心的温度。
段智成说“烟火气”是给家最好的生命力。这也是给居住者最好的暖心回馈。本期在113平的小平层设计里,该如何凸显这一家三口的“烟火气”。

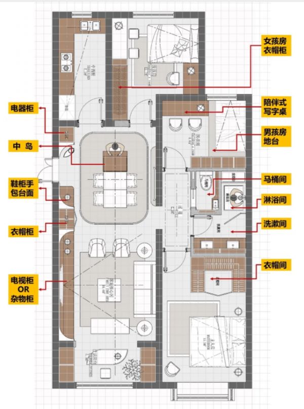
户型图

空间布局图

本次设计中,整体方案以轻奢简约的风格为主,在三卧两卫的设计中,设计师充分考虑了人体使用习惯的原则,在做到空间与空间符合人体运动线路的同时,考虑到孩子的成长互动,设计师特意在原有的空间格局上加大了对男女儿童房的公共互动空间的改造。

男孩房
男孩房整面可图画的墙正符合8岁孩童爱涂爱画的天性,也给父母和孩子留出了充分的互动空间。

女孩房
宽大敞亮的衣柜更适合爱美的女孩子,旁边百叶橱窗的设计为这个空间加入了几分光的浪漫美。

衣帽间
即使中国倡导断舍离,但再女性的日常生活中,定期断舍离仍是一件难以定期实现的事情。索性加大对空间的利用度,提高收纳空间,让断不掉的都偷偷藏起来。这也是本次方案中女主人的诉求。
设计简评:
空间的最大化、最合理的利用是本次改造方案最大的亮点,而在设计中一定程度考虑未来空间的变化可能性也是设计师替业主提前下好的一步棋。
家的“烟火气”不仅要靠人本身,也要靠设计的专业和严谨!
网址:华耐设计基金《设计生长计划》|段智成:烟火气是给家最好的生命力 https://www.jiaju82.com/news-view-id-716316.html

