75平方北欧风装修案例
发布时间:2020-08-14 21:01
案例详情 设计师用软装饰品以及色彩搭配来呈现整个空间的品味。干净明快的浅色系墙面搭配黄色的沙发,让空间提升了质感。餐厅的设计满足了时尚浪漫的生活需求,内敛不张扬,简约而实用。卧室整体空间经过设计师的巧妙规划和风格色彩的把控,空间变得简洁大方不失韵味,一眼望去,仿佛带着阳光的味道。

客厅和餐厅之间还做了一道玻璃隔断,有种屏风的感觉,看起来很时尚。客厅里都是浅色系的装修,摆放上绿植装饰一下,看起来更生机勃勃一些。

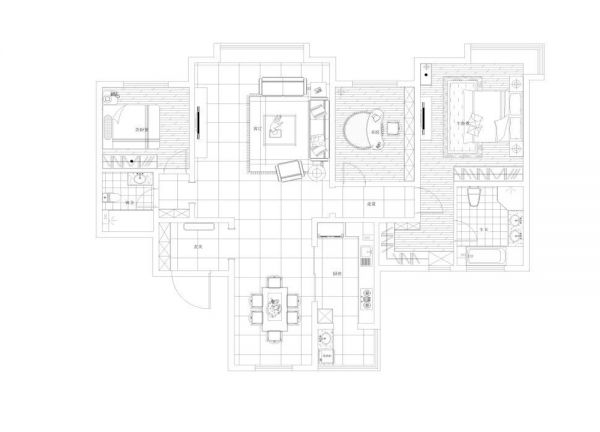
玄关,进门处设计了一个小玄关,做一个嵌入墙面的半高的玄关柜,底部还是悬空的设计,可以放经常穿的鞋子,墙面上还做了纽扣形状的挂钩,可以挂包包外套等,然后旁边就是全身镜,还起到开阔空间的作用呢。

进来之后就是餐厅,餐厅里简单的摆放了原木的餐桌椅,还摆放了一瓶鲜花装饰,看起来很精致优雅,餐桌的后面还有到顶设计的收纳,中间留出空间可以摆放上一些装饰品,看起来更美观一些。

客厅,客厅里带有一个阳台,阳台的区域还抬高了,起到划分空间的作用,把阳台打造成休闲区域,休闲娱乐都不耽误。

厨房,厨房不是方正的,是L型的,厨房的布局自然也是L型的,灰色的瓷砖搭配上白色的橱柜,简约大方,还在墙上做了收纳,这样的厨房肯定很整洁方便。

主卧,主卧里大大的落地窗带来充足的光线,只有窗帘是墨绿色的,看起来有点轻奢的感觉。靠墙做了一排大衣柜,收纳空间够用。

儿童房,儿童房里书桌和收纳是一体的设计,收纳柜还留出空间来摆放书籍,看起来很整齐,用起来很舒心。

厨房最里面还划分出了一小块区域,打造了生活区域,用来洗衣服和晾衣服。合理利用了空间,减少了室内装修空间上的浪费。

灰色的卫生间设计,增加了装修中的高级感,增添了装修过程中对于卫生间的的舒适感,使居住使用更加舒适。

北欧小清新装修风格近些年受到了很多年轻人的喜爱,整体的布局十分简约大气!温暖中带着些许清新,以淡雅的暖色穿插了空间,素色的家具点缀其中!舒适中带着一丝高冷!
网址:75平方北欧风装修案例 https://www.jiaju82.com/news-view-id-716331.html