户型通透,简约温馨
发布时间:2020-08-15 16:01
案例详情 简约风格的特色是将设计的元素,色彩,照明,原材料简化到最少的程度,但对色彩,材料的质感要求很高。因此,简约空间设计通常非常含蓄,往往能达到以少胜多,以简胜繁的效果。简约不等于简单,它是经过深思熟虑后经过创新得出的设计和思路的延展,不是简单的“堆砌”和平淡的“摆放”。简约,不简单走进现代简约风格家居。现代人面临着城市的喧嚣和污染,激烈的竞争压力,还有忙碌的工作和紧张的生活。因而,更加向往清新自然,随意的居室环境。

客厅不算宽敞,采光也不算好。加入吊灯、射灯,整体光感就很棒了。而且整体是浅色调,就更显得温馨舒适。

没有专门的玄关,在入户之后的墙面与沙发之间做了一个到顶的满墙的收纳柜。中间做空,可以摆放一些装饰物,或随手放置的东西。

我们还可以看到,在门的左侧还有一个小的鞋柜,可以收纳入门的鞋子。

厨房整体设计成白色的,明亮大方,地砖为灰色,方便清洁。

餐厅设计了卡座,好处是座底还能收纳。小巧的餐桌椅,也很好用。餐厅区靠着书房,书房设计成榻榻米风格的,能看书、办公和休息,实用方便。

阳台打造成生活阳台,一侧有洗衣机洗手台和吊柜。另一侧就是休闲区,有吊椅可以休息。

洗手台延伸至另一侧墙面,白色的非常清爽大方。旁边是拖把池,方便搞清洁。玻璃材质的门做好洗浴室和外边的干湿分离。

儿童房浅色调,床品卡通的非常明亮活泼。阳台的吊椅设计,增添趣味性。

主卧的筒灯光线,让空间更具层次感。整体颜色搭配明亮简单,家具和地板颜色整体一致,简单舒适。

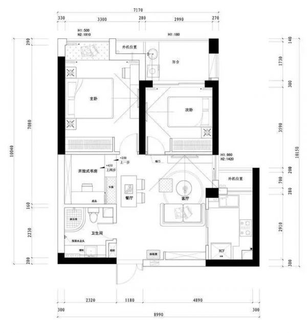
【户型图】 简约背后也体现出一种现代“消费观”,记注重生活品味,注重健康时尚,注重合理节约科学消费
网址:户型通透,简约温馨 https://www.jiaju82.com/news-view-id-716383.html