注重环保,健康的不二之选
发布时间:2020-08-16 11:01
案例详情 北欧风格不仅注重居室的实用性,而且还体现出了现代社会生活的精致与个性,符合现代人的生活品味。全面考虑,在总体布局上方面尽量满足业主生活的需求,主要装修材料以樱桃木,壁纸为主,以樱桃木的优美含蓄,壁纸的初冬暖阳的色温来装饰墙面的景点。更体现北欧独特设计的美感,创造一个温馨,健康的家庭环境。

客厅在沙发墙上开了个洞,玻璃+纱帘的组合,保证隐私性的同时增加通透感。

餐厅设置在角落里,粉色+灰色的餐椅,搭配两幅北欧装饰画,营造出清新舒适的就餐环境。

卧室延续了北欧风设计,组合衣柜提供了充足的收纳,整体保持视觉上的轻盈感。

主卧里利用一堵墙,划分出一个独立的小书房,在家办公也非常轻松。

阳台一侧被隔出了一个独立衣帽间,再多的衣服鞋子也有地方放。

进门就是厨房,通过打造在黑框玻璃隔断来分隔空间,有效地保证了隐私性。

开放式的厨房设计,L型的白色系橱柜布局,搭配灰色系蜂巢地砖,简约又时尚。

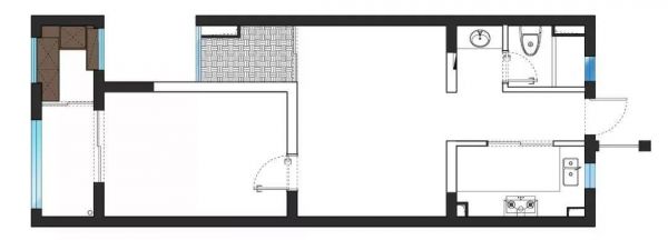
【户型图】 具有品味的设计风格,它在细节上的把握是非常重要的,在现实装修中更是非常不容易达到的一种效果。
网址:注重环保,健康的不二之选 https://www.jiaju82.com/news-view-id-716414.html