小情侣的32m?狭窄蜗居,改造后面积多出一倍

木质收纳架及圆盘时钟, 让这个小区域活泛了起来, 可摆放些小装饰摆件或两人照片, 生活的乐趣就在细节当中

除了沙发给人惊喜, 客厅还可以加入白色可拆卸长桌, 朋友聚会或是家人来访, 这样的长桌非常有必要, 且就连桌子也没有跳脱整体风格, 也是保持着白色主色调。

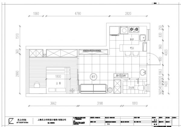
改造前的小客厅一直被作为卧室在使用, 并且摆放了小床和电脑桌, 橱柜之后几乎把空间占满, 这样的布置很难让人想象原本是客厅, 所以设计师按照户主要求, 将客厅独立了出来

床头及窗帘的亚麻材质, 与客厅沙发想呼应, 不同空间的呼应感更能体现整体性, 且亚麻窗帘遮光效果非常棒, 所以睡眠环境也非常舒适自在, 除了卧室主灯, 床头的顶灯设计静谧实用, 晚上可作为阅读灯。

改造前盥洗台在卫生间里, 让原本拥挤的空间显得更加逼仄, 所以设计师充分利用进门后的空间区域, 将之分隔为玄关和盥洗台, 互不影响,又完美利用起每一寸空间,

暗藏玄机的沙发可以让客厅秒变客卧, 把茶几搬开后, 可以把配套的长沙发拿出来拼接, 华丽丽变身成一个简易又舒适的床, 这样的设计以备不时之需。

沙发,茶几,电视一应俱全, 没有过多杂色添乱, 风格也保持着清爽简约的样子, 茶几下方也没有做镂空处理, 而是加入了白色收纳盒,满足收纳需求, 地面经过磨砂工艺处理, 对光线的反射让砖面显得也非常有质感,


进门右手边是开放式厨房区域, 颜值对比改造前,提升了不止一个档次, 与全屋风格一致,白色清爽简约风, 并为小情侣设计了一个大理石吧台

狭窄阴暗的空间布置给人感觉较为压抑, 而且受制于空间大小, 生活中出现的过多杂物, 也会给人一进门乱糟糟的感觉
网址:小情侣的32m?狭窄蜗居,改造后面积多出一倍 https://www.jiaju82.com/news-view-id-717491.html