95平北欧风,电视柜做嵌入式,省空间又实用!
发布时间:2020-08-21 14:01
案例详情 北欧风格以其简单而著称,并影响到后来的"极简主义"、"简约主义"、"后现代"等风格。北欧风格风格家居,浅色、干净、清爽的感觉使家庭空间完全凉爽。客厅的布局重点集中在家具的选择以及颜色和织物的匹配上。和谐和对称的技巧使布局的每个细节都感觉舒适。省空间又实用

全屋通铺了木地板,温馨有质感,阳台和客厅安装玻璃门隔断,整个空间清新明朗

全身镜安装在餐厅移动轨道上,可根据需要移动,还能遮住强电箱。轨道一侧还DIY了3个挂钩,在保证质量和安全前提下,轨道尽量细,统一全屋风格。

从客厅方向看向餐厅,墙面刷了浅灰色,更有质感一些,天花板则刷大白墙,凸显层高。

玄关进来先到餐厅,布置得简单但不失温馨,轻盈的桌椅搭配简约吊灯,北欧质感十足。

主卧室延续了客厅是色调,全屋的统一协调效果很完美,家的品质感都上升了。

次卧室用色更简单一些,灰白色和原木色搭配,清新耐看。

门厅处没有太多位置,摆放一个成品鞋柜满足日常收纳,盆栽、大理石面板钟、小壁灯、装饰画,丰富了入门第一视野。

厨房以浅色为主,浅灰色橱柜门高级感倍增,绿色的地砖很漂亮,也呼应了客厅的色调。

在原来的过道,再向厨房借一点空间,做成了卫生间洗漱台,浅灰色柜门、地板砖和厨房保持一致,磨砂玻璃的卫生间门,简单又有高级感。

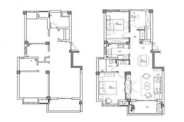
【户型图】 借用厨房部分面积,将干区移到卫生间外;利用柱子间厚度,将整面电视墙改为柜子隔断。
网址:95平北欧风,电视柜做嵌入式,省空间又实用! https://www.jiaju82.com/news-view-id-717524.html