109㎡现代简约风家居,甜蜜粉与水泥灰的碰撞
发布时间:2020-08-23 12:01
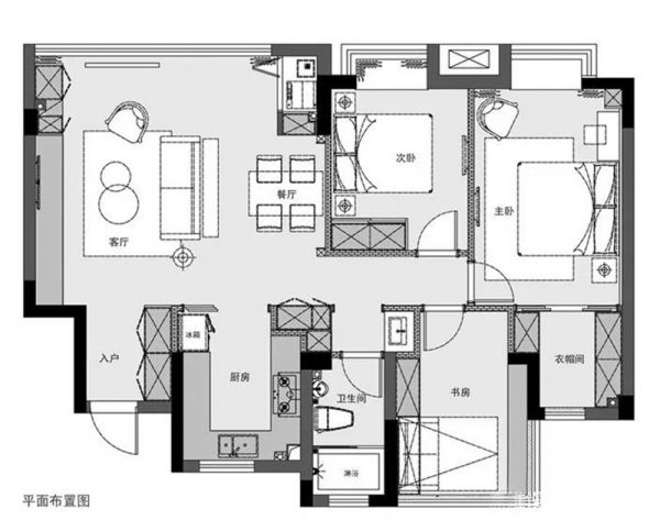
案例详情 看腻了极简空间的黑白灰,厌倦了北欧风的木与白,是时候给家增添一抹甜蜜粉色了,但是避免室内因为粉色过于“温暖”,设计师在地面铺设上选择了灰色系地砖,中和了这一份甜蜜。对于空间功能区域的合理划分,设计师将原先的过道进行整体“平移”,不仅增加了入户鞋柜的面积,同时扩大厨房、书房空间,也增加了干区、过道储物柜这样实用性的功能区域。而这样的一个“平移”设计,则是将小空间进行扩大,而在空间中显得过于开阔的功能区,则将两者调和,达到一个平衡的空间状态。

在这个以粉色为基调的空间里,从大面积的墙体背景,到单品的家具、靠枕、装饰画,都不断的呼应着。

白色的定制柜与深灰色沙发,则起到了一个很好平衡作用。

舒适柔软的地毯,细腻的触感,踩上去特别舒适。

洁白轻柔的纱帘,给空间增添了一丝清凉,沙发后的一方墙,也格外惹人注意。

再配上几个不同形态的抱枕,散发出清新的气息,展现不一样的美,让客厅更具风情。

大理石台面的餐桌上,摆上精致摆件,加上金属质感的吊灯,随性中又带一点温馨。

客厅铺地毯,是简约风的标配,显得沉稳而富有层次感。

厨房铺设着灰色瓷砖,与木质地板相比更耐脏,也更容易清洁。乳黄色的橱柜,与白色大理石台面结合,简洁时尚,清爽大方。

主卧墙面也依然延续着空间基调,旨在达到屋主对艺术追求的同时,保证住宅应有的舒适度与温馨感。

【户型图】 空间以白色与粉色为主基调,为空间增添了甜蜜的色彩。
网址:109㎡现代简约风家居,甜蜜粉与水泥灰的碰撞 https://www.jiaju82.com/news-view-id-717671.html