昆仑域 现代简约
发布时间:2020-08-28 12:01
案例详情 本案例为一个顶层的跃层户型,楼上面积较一层小一些,风格定位为现代简约,符合业主的年龄阶段。跃层的设计,功能的分区十分重要,楼梯的规划与设计也是其中的亮点

本案在现代简约的风格中融入轻奢的理念,装饰设计以高品质和简约为基础,设计简洁大方,时尚,前卫,优雅,给人以舒适的感觉。本案客厅的设计加入了金属与皮质的元素,采用高级灰的色彩表现给人一种空间整洁高端的感觉。

餐椅也采用皮质的材质,与客厅家具相呼应,餐边橱柜的设计简约大方,使得餐厅既整洁又时尚,搭配以高级灰的墙面,彰显品质生活。

儿童房的设计整体体给人以少女淡雅的感觉,床头背景的拼色设计,清新时尚,设计师通过对有效空间的合理布局,使得儿童房可以满足休息、学习、娱乐等功能。

主卧的设计简约大方,没有过多华丽的装饰,用灯光和色彩营造出温馨舒适的休息环境,体现出一种无负担、高品质的生活态度。

玄关处简单的金属线条装饰与大面积留白的设计,使得玄关装饰柜与装饰画更为突出,成为整个空间中亮丽的一点。

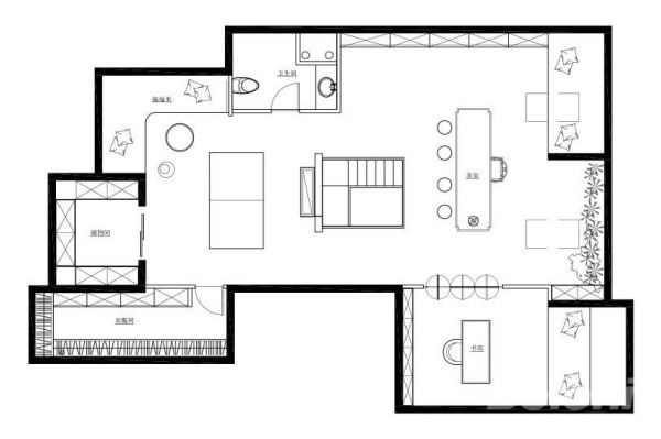
二层主要以储物休闲为主,超大的储藏室和衣帽间满足了全家人的收纳需求,独立的书房并兼有客房的功能,宽敞的茶室休闲区既可以供业主一家日常休闲娱乐,也可以用来招待来客。

一层主要以生活为主,南北通透的客餐厅满足业主日常的待客起居需求,中西厨相结合使得做饭也成了一种享受。三间卧室宽敞明亮且都具备学习休息的功能,使空间得到了最合理的利用。
网址:昆仑域 现代简约 https://www.jiaju82.com/news-view-id-718757.html