阳春光华 现代简约
发布时间:2020-08-28 12:01
案例详情 本案设计在功能使用上追求实用性,增加空间的储物利用;在整体感觉上追求简约大气,各功能区划分分明,又相互交合而成,保持了空间的统一。

主卧床头柜的对称设计,让空间呈现出一种安静、祥和的美,旁边增加了一排储物柜,解决了主卧储物与收纳收纳的功能需求。

布艺沙发搭配简单的茶几,沙发背景墙上的画与电视背景墙相呼应,追求整体空间感统一又和谐。

餐厅满墙的一体化柜体增加了储物空间,局部开放格的设计使空间具有灵动性。

厨房与餐厅的空间打开,做成开放式,利用吧台作为隔断,在视觉上使空间更加宽阔。

书房榻榻米的设计更大程度上解决了空间的储物与收纳,整个空间是集储物、看书、休息一体化。

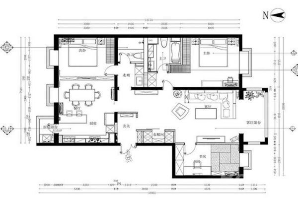
本案户型图没有做过多的改动,厨房餐厅区域重新处理,厨房的原始墙体拆除做成开放空间,厨房餐厅之间利用吧台作为隔断,在细节上增加了储物空间,原来客厅的区域隔出了一个兼具休息的书房空间。
网址:阳春光华 现代简约 https://www.jiaju82.com/news-view-id-718759.html