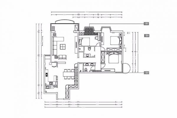
暖灰色的墙再配上暖灰色的柜子,让空间浑然一体

女主人的气质是那种安静的、淑女型的女孩,色彩想要安静点的,舒服点的,所以卧室暖灰色的墙再配上暖灰色的柜子,让空间浑然一体。温馨又舒适。

儿童房因为空间有限,所以合理的把飘窗利用起来,做上榻榻米,外面就于放书。加大储物功能的同时不显得空间拥挤。

"门厅留了进门换衣服的坐位功能的同时也留了方便放包挂 衣服的空间。餐厅和厨房打通让空间更加宽敞,厨房也留了哑口和过门石,后期要是觉得油烟大也可以加上玻璃的推拉门这样空间感也不影响。 "

客厅的前后背景墙让空间显得大气的同时空间感更强大。实木的地板配上桃木的墙板让空间上下呼应。

主卧室的墙板和客厅的墙板进行呼应。床头做上洗墙灯的效果,让空间感更强大。

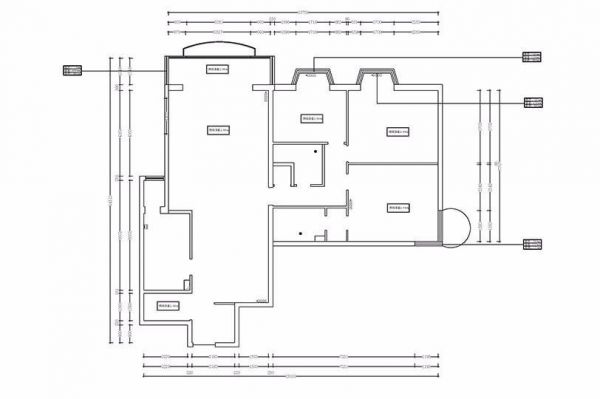
"此房子是位于北京市海淀区紫竹桥附近的二手房,建筑面积170平米。户型方正、空间合理。应客户本人对空间的私密要求,在室内的各个空间都加了隔音处理,原有结构相对合理,所以不做大的改动,原有主卧室的门和次卧室的门离的比较近,在这次装修中做了调整。为了提高生活的舒适性,这次装修增加了中央空调、新风、净水、软水、激光电视等设备 "

"1-进门的左手边是消毒房,主要用于家人外出回来进门后的第一个洗手点以及给家里外出回来小狗洗澡。2-进门的右手边把门厅柜及餐边柜连贯起来,一是增加储物量,二是客户时常会有在家办公需求,所以在餐边柜处留了网口、打印机等办公设备的位置。3-厨房 客户不太能确定做开放式的好不好,所以现在是按开放式的做的,未来如果觉得油烟太大 现在是预留了增加推拉门的空间的。4-此房的入户门正对着客厅的窗子 客户不太喜欢,所以我们在客厅和餐厅加了通透的隔断,同时这里也是佛龛的及财神的摆放位置。5-为了解决主卧室的门
网址:暖灰色的墙再配上暖灰色的柜子,让空间浑然一体 https://www.jiaju82.com/news-view-id-718766.html