50㎡休闲小阳台+独立衣帽间
发布时间:2020-08-31 19:00
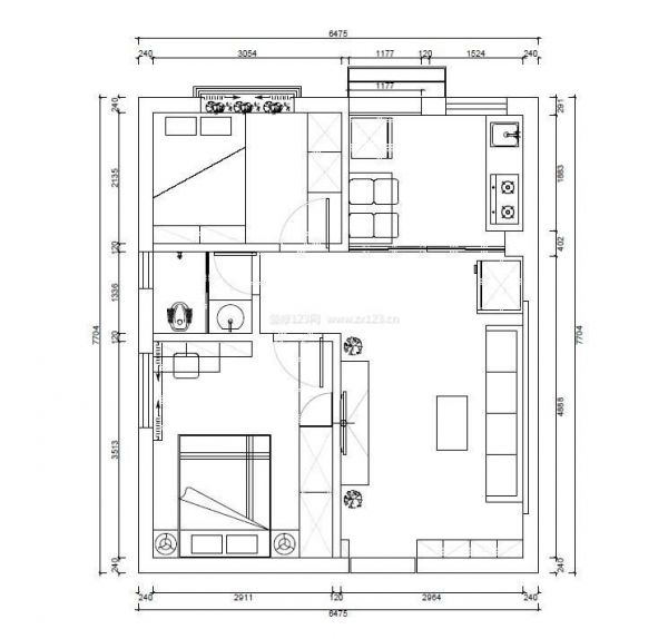
案例详情 现代设计追求的是空间的实用性和灵活性。居室空间是根据相互间的功能关系组合而成的,而且功能空间相互渗透,空间的利用率达到最高。空间组织不再是以房间组合为主,空间的划分也不再局限于硬质墙体,而是更注重会客、餐饮、学习、睡眠等功能空间的逻辑关系。通过家具、吊顶、地面材料、陈列品甚至光线的变化来表达不同功能空间的划分,而且这种划分又随着不同的时间段表现出灵活性、兼容性和流动性,如休憩空间和餐饮空间通过一个钢结构的夹层来分割,阁楼上的垂幔吊顶又限定了床的范围,这是典型的现代空间设计手法

玄关空间比较宽敞,进门右手边定制顶天立地的玄关柜,左手边是一面全身镜,简约实用。

客厅位置临窗,采光很好,看上去十分通透明亮。

电视墙没有多余的装饰,同材质的悬空电视柜+隔板,既美观又实用。

餐厨一体做开放式设计,选择深色调的橱柜,干净整洁易打理。

采用U型的橱柜布局,电器都做嵌入式设计,充分利用空间。

卧室布置得简约又有质感,床头背景墙选择木饰面板,加上灰色调的床铺,低调有气质。

卧室里有一个小小的独立衣帽间,推拉门的设计不占用空间。内部呈L型的布局,合理的区域划分,衣服鞋子收纳非常整齐。

卫生间,通过玻璃隔断做了干湿分离,淋浴区墙面还设计了壁龛,方便实用。

卧室外边的小阳台,被打造成一个休闲区,摆放一个懒人沙发和一张小茶几,喝喝茶看看书十分惬意。

一室一厅的格局,整体选择现代简约风格设计,装修完工后不仅宽敞明亮,还有休闲小阳台+独立衣帽间,一点也不输大户型!
网址:50㎡休闲小阳台+独立衣帽间 https://www.jiaju82.com/news-view-id-719196.html