经典三室两厅北欧风格,客厅设计太有趣了

因为屋主都是医生,回家时间不多,暂时没有准备大沙发,只摆了一张蓝色单人沙发,和蓝色玄关柜呼应。仔细看,你会发现公共空间的灰色、白色、黑色、蓝色都分别重复了三遍以上,所以整体配色是舒适的。

仿真叶为主题的蓝绿六角砖是特地为玄关准备的。多数选六角砖的人都可以不按套路出牌,以不规则形状一直延伸到客厅,只不过这就需要考验装修师傅的手艺,毕竟还要将木地板进行切割,并进行无缝拼接。

基本屋主提的四个条件,都被设计师巧妙地融入进房子的各个角落了,并且还很有自己的特点。

除了色彩,曲面弧度线条也是层层呼应。比如,大家看客厅天花板的半弧形设计,和电视背景墙,和茶几、地毯的圆形,都做了弧度呼应。仔细看天花板上还设置两个铁制钩环,那是为喜欢健身的屋主准备吊挂 TRX 吊绳用的。

立柜下悬空方便收纳扫地机器人,整体还是较为简约的,是北欧风没错了。深灰和浅灰的两盏水泥锥形吊灯,长得挺有特色,也是为了增加桌面光源。 静区简单不造作,客餐厅里侧,顺着走廊,一路来到静区的几个房间。

顶天柜体增加小户型收纳,你会看到这个“”顶天立地”其实还是分了两段来完成的,顶部利用天花板做了四个顶柜,通过颜色调整让视觉更舒适。下部水泥灰柜门,串连起与开放区域间互动。

玄关的一面白色、一面蓝色隔断,其实都是柜体。蓝色柜体是和客厅的电视背景墙连为一体的造型,不同方向的处理不一样。 总的来说,收纳容量颇大,并将动线指引至客厅领域。

玄关蓝色柜体,是木作曲面包覆著大容量收纳空间,到客厅的电视背景墙这面看,整个曲面更加明显了。并且连接起乐土灰色水泥墙,肌理粗犷,内嵌金属线条元素。

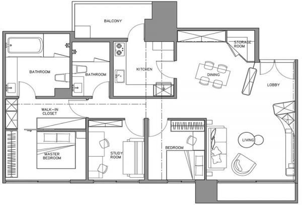
【户型图】 右侧白色玄关柜不顶天、不落地,上下以金属线条来打造时髦印象。整体造型以圆弧曲面设计,削减视觉厚重感,看上去可以使屋内空间保有穿透性,串连各领域。
网址:经典三室两厅北欧风格,客厅设计太有趣了 https://www.jiaju82.com/news-view-id-719622.html