北欧风120平米两居室
发布时间:2020-09-03 14:01
案例详情 现在不少朋友们都会选择120平米的房子,而这样的房屋如何设计才能让家人都满意呢?今天小编为各位朋友们介绍一下中远两湾城四期这个楼盘中的户型,将120平米的房子装修成一居室,装修方式采用的是全包,整个装修下来仅仅花费18万,装修风格采用了非常时兴的简约风格,话不多说,一起看看这款简约风格是如何设计出来的吧! 设计说明:换句话说减少欲望,让心沉静的装饰风格,保留了空间最本质的特点。把极简主义定义为一种“更为人性化的、环保的、轻松愉悦的生活方式”来得更加精辟些。 客厅是家居设计的核心区域,是我们长时间活动的区域,也是客人来访时的主打区域。客厅设计的好坏对于家居整体的颜值有很大的影响。

虽然简单却没忘记功能,极简主义生活放弃生活根本不需要的附带品,或者扔掉,或者捐赠,突出每个空间最简单的功能,号召人们回归生活本真。

黑白灰的主色调简单大气,做了干湿分区更好打理,圆形的镜子时尚个性。

用化繁为简手法,强调线条的比例美,增强对空间的认知感能力,纵横交错间能很好的体现流畅简约的线条美。

可持续的空间不仅仅是在拉近和走远之间切换,它引导你走向真实的材质,让你感受它对自然的开放和包容,一舒一展是一种态度继也是一种习惯

所有设计的出发点,都不能离开“人”。我们认为装修是对美的诠释,而注重舒适和自然情怀则是城市精英的选择。

厨房间以灰色的墙面,白色柜体门板搭配简单层色

厨房是每个吃货最喜欢的地方,然而对于多数家庭而言,厨房的面积并不是很大;因此,厨房在装修的时候合理分布各个功能、合理的设置收纳储物空间、并把现代化的电器也植入到空间里就显得尤其的重要了!

将身份认同与自我主张,转化为空间形式与生活形态的崭新姿态,才能够满足现代都市消费者的诉求。 厨房

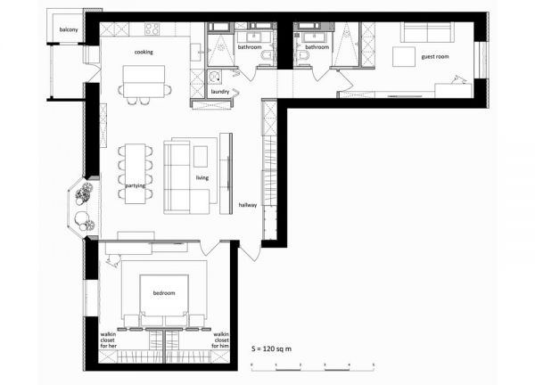
【户型图】 当整个世界都在为了引人瞩目而变得花枝招展,拥有一颗平常心,保持简单和纯粹,或许反而会成为那个与众不同
网址:北欧风120平米两居室 https://www.jiaju82.com/news-view-id-719658.html