69平的北欧风二居室,白与木的温馨质感好喜欢
发布时间:2020-09-04 00:01
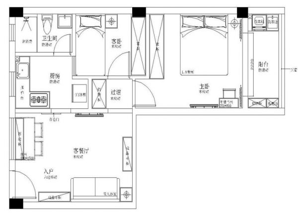
案例详情 今天分享的是一套建筑面积69平米的北欧风小户型二居室案例,房子整体的搭配以白色和木色为主,通过简洁的硬装和温馨的木质家具,来营造出这种舒适、轻松的居住氛围,房子虽然并不算很大,但整个家的布置却紧凑又实用。入户没有玄关走廊的户型,屋主在沙发的边上摆放了一个换鞋凳

入户没有玄关走廊的户型,屋主在沙发的边上摆放了一个换鞋凳,方便平时更换鞋子。玄关处铺贴了六边花砖,和客餐厅的木地板形成对比。

卧室的面积并不算很大,原木风的床、床头柜和衣柜搭配白色的墙面,床品上带有一些绿植图案,整个卧室给人一种简约、自然的感觉。

原木风的餐桌椅摆放在了靠窗的位置,这样吃饭的心情也会好一些。餐厅上方的吊灯款式简单又有一定的设计感,非常好看。

卧室的床尾做上柜子,让卧室不至于多出一些缝隙死角空间,床尾柜的上方也能摆放挂画、绿植等作为装饰。

客厅的边上还有一个斗柜,可以摆放一些零碎小物。客厅和卧室之间的走廊过道处做了嵌入式的储物柜,门槛的款式和木地板也非常融洽。

厨房内部做了L形的橱柜搭配窄边柜,这样厨房也能够多出一些储物空间。小白砖搭配木质的柜门,给厨房带来了舒适感。墙面做上各种收纳设计,让日常使用更加方便。

迷你的灰色双人位布艺沙发,搭配彩色的几何图形地毯,客厅的墙面直接留白,点缀一幅简单的挂画,侧方边几上摆放绿植,都让这个客厅看起来更舒适。

餐厅和厨房之间是用了谷仓门作为隔断,灰色的框架搭配上玻璃,让光线能够流通起来,又显得更为简洁、轻松。

卫生间内做了干湿分离的设计,浴室柜和镜柜结合让卫生间拥有更多储物空间。白色、木色和灰色的搭配方案,是齐家小菜非常喜欢的一种搭配,给人轻松又舒适的感觉。

一套建筑面积69平米的北欧风小户型二居室案例,房子整体的搭配以白色和木色为主,通过简洁的硬装和温馨的木质家具,来营造出这种舒适、轻松的居住氛围
网址:69平的北欧风二居室,白与木的温馨质感好喜欢 https://www.jiaju82.com/news-view-id-719769.html