专业设计,让家居生活中多一份舒适和惬意
德立淋浴房自创办以来,就一直以“让淋浴更舒适”为使命,致力于提供最符合国民需求的淋浴房。“让淋浴更舒适”这句话深深印刻在每一位设计师的心中。蔡丽丽是德立众多设计师的一位,他们都有着同样的特质:从客户的角度出发,让布局更合理,既达到视觉上美观,又让客户使用起来更舒适。
- 设计师蔡丽丽精品案例赏析 -
巧妙设计,让美自然而来
舒适不仅来自身体的触觉,视觉上的舒适同样重要,淋浴房的美,可以通过巧妙的设计体现,并在意想不到的地方逐一呈现。
▲德立淋浴房SU2
“美”不是一味地跟风潮流,只有适合才是设计的根本。甄选行业高档材质,汽车级钢化玻璃带来空间极简通透的效果,让淋浴房与卫生间浑然一体,视觉通透缔造纯净之美,充分还原生活本质的纯粹。
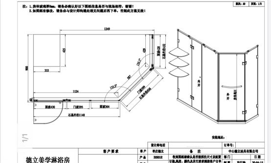
▲德立淋浴房SA2
利用专业知识,结合测量情况,找到围杆、合页、固定夹的受力平衡点,达到最稳定牢固的效果,以结构立空间之美,用设计诠释新时代的家居艺术。
合理利用空间,舒适方便
“非标定制”是德立所擅长的领域,设计师首先手绘补充细节,再用计算机制图。在淋浴房外镶嵌三层玻璃置物架,在淋浴房内的墙角同样也镂空一个格,这样的设计可以巧妙空间利用,彻底解决卫生间收纳问题。
▲计算机生成订单
▲手绘细节
此外,设计三块固定玻璃+两道活动门玻,扩大淋浴空间,靠近置物架的门玻位置设计内开,便于取物,外开靠近卫生间大门,进出自如。
▲最终成品效果部分细节图
通过此番巧妙设计,淋浴房已然成为整个卫生间的核心,集舒适淋浴和提升空间利用率于一体,同时淋浴房拉手还可以放置毛巾衣物,使卫生间的布局更加合理。
干湿分离,从本质出发
让淋浴的过程达到舒适享受的效果,重点从干湿分离、安全稳定和身体触感出发,尽量做到面面俱到,优化淋浴房的每一个设计细节,因为舒适才是最好的体验。
▲红圈重点标注
底部挡水石基配合淋浴房,防水好,无积水,达到干湿分离的效果。用以固定淋浴房的墙夹、合页、固定夹,巧妙地隐藏了螺丝结构,同时位置居中起到紧锁玻璃,稳定性更佳,淋浴更舒适。
▲淋浴房一体成型
进出淋浴房时都会用到拉手,带有一定弧度的拉手设计,线条流畅仿佛是在“微笑”,同时握感舒适,高度适当,每个家庭成员使用起来都舒适便捷。
蔡丽丽是德立众多设计师中的一个缩影,他们通过挖掘客户最实际的需求,用自己专业,为客户创造一个又一个满意的淋浴空间。从设计构思到设计手稿,再到安装效果,德立设计师们每一项方案都细致入微,与此同时,他们也在不断去创新和丰富自己的设计语言,为客户营造一个更舒适的淋浴空间。设计源于生活,又归于生活,适合是设计的根本,舒适才是最好的体验。
德立淋浴房,让淋浴更舒适!
责任编辑:mafei网址:专业设计,让家居生活中多一份舒适和惬意 https://www.jiaju82.com/news-view-id-720029.html

