常青园 现代简约
发布时间:2020-09-08 12:01
案例详情 该简约风格户型在空间设计上强调室内空间开阔的理念,设计风格没有过多的装饰物,主要以简单的线条和装饰简洁的造型来体现出现代简约的设计。设计师采用留白的设计手法来营造出空间中的个性与宁静,在把握好整体房间空间感的同时,选择营造居室居住环境的舒适度也是至关重要的。

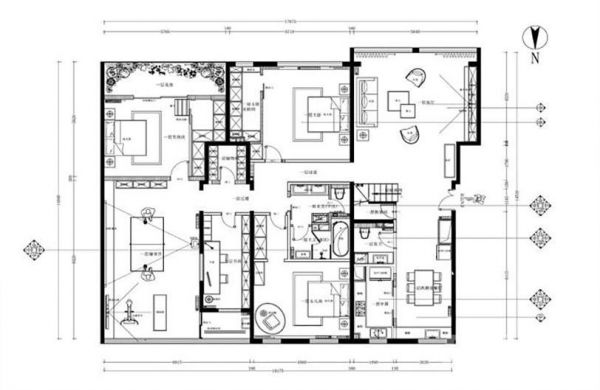
一层餐厅:白色的简易餐桌搭配上草绿色的挂画与绿植,时尚亮眼的颜色,给人一种清新明快的感觉 ,棕色的墙板木料与白色烤漆板搭配,使餐厅整体看起来很稳重大气。

二层休闲区:该区域作为休闲办公区,读书与品茗对环境的要求又极其相似,打造一款书房茶室,品茶、练字、读书,在书情画意中沉淀心灵,感受安静;在清新茶香中感悟人生。

一层主卧:壁纸和地毯采用绿植图案,暖黄色的灯光与木质的地板相呼应,鲜艳的颜色使的空间不再显的单调与枯燥,反而充满了生机。

一层儿童房:儿童房以深蓝色主色调搭配黄色,楼梯连接一二层使用空间,二层的活动区给孩子创造了一个属于自己的小天地,像这样的一个设计,充满孩子喜欢的元素,也是个很不错的选择。

二层休闲区:该区域作为运动健身区,侧墙做攀岩墙,挂舞蹈镜和画板,顶面采用星空吊顶,以其时尚前卫,深具个性魅力的独特效果,实现了科技与艺术的结合。

一层客厅:电视背景墙运用橡木材质,简约质朴的木质感给空间增添了一份安静和舒适。,温暖的光线让客厅变的更加温馨,坐在沙发上欣赏窗外的美景岂不是让人羡慕的生活。

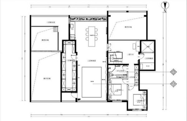
二层布局图:根据客户要求,将原始二层阁楼楼板进行拆除,同时打通书房墙壁,使一个完整空阔的空间显现出来,从而实现了运动办公休闲娱乐等多个功能。

一层布局图:原始儿童房房高太低,空间太压抑,设计师精心考虑后,决定将原有二层楼板局部拆除,从而拉高了房高,使得儿童房更加开阔活跃。
网址:常青园 现代简约 https://www.jiaju82.com/news-view-id-720345.html