54平的工业风小户型公寓,水泥墙带来独特质感
发布时间:2020-09-17 00:01
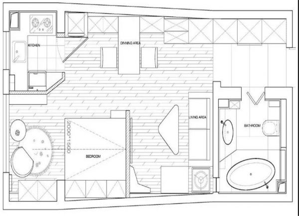
案例详情 今天分享的是一套建筑面积43平米的工业风小户型单身公寓案例,由于房子是长条形的,采光点也只有阳台这个地方,所以整体的设计采用了开放式的布局,让光线得以流通。在客厅和卫生间内设计的水泥墙,也给这个家增添了一些工业风的感觉。入户玄关走廊的一侧做了嵌入式的收纳设计

整个客餐厅、卧室、阳台都是开放式的布局,厨房被单独放在侧方,这样的设计可以避免一些油烟问题。反正是个单身公寓,卧室也不需要单独隔开。

客厅的电视背景墙是做了半墙的款式,让客厅可以借到卧室的光线。舍弃了电视柜也让客厅不会那么拥挤。

玄关鞋柜一直延伸到了客餐厅,开放式的储物格让收纳变得更加方便,客厅的沙发背景墙被刷上了水泥漆,独特的质感带来了工业风的美感。

餐桌椅的款式都是比较轻便的,让空间显得更为通透。在餐桌边上的底部还加入了藏光的设计,让人感觉更加时尚和大气。

卧室的床靠着电视背景墙摆放,另一侧也贴着墙面,这样布局更加紧凑实用、木地板上墙的设计给卧室增添了一些温馨感。

卧室床尾是个阳台空间,现在也被屋主改成了休闲阅读区,衣柜放在了阳台的侧方,搭配一个衣帽架使用,更加方便。

入户玄关走廊的一侧做了嵌入式的收纳设计,一部分的鞋柜门还被改成了镜面的设计,让穿衣镜和收纳结合起来,非常实用。

厨房的面积不算大,做了U字形橱柜之后,显得有些拥挤。洗衣机被整合进了橱柜当中,整体白色为主的设计,让厨房看起来更加简洁大方。

卫生间内以灰色为主,水泥墙加上灰色的墙地砖,搭配白色的卫具,让卫生间看起来简单却又有格调感。用浴缸来代替淋浴房,满足屋主爱泡澡的需求。

【户型图】 由于房子是长条形的,采光点也只有阳台这个地方,所以整体的设计采用了开放式的布局,让光线得以流通。
网址:54平的工业风小户型公寓,水泥墙带来独特质感 https://www.jiaju82.com/news-view-id-721846.html