奥林匹克花园 现代简约
发布时间:2020-09-17 10:03
案例详情 本案为老房翻新项目,业主住了十几年的房子因为电路水路老化,决定从新翻新。设计上客厅利用冷色调整体时尚简洁,卧室暖色调舒适温馨,厨卫都用的白色瓷砖方便打理整洁。

客厅整体色调为冷色调,穿插暗红色的皮质沙发做呼应,地砖采用大块岩板直纹白的设计,壁纸不规则的几何图案为整个空间的点睛之笔。

厨房空间整体简洁大方,墙面用的进口瓷砖暗纹白,地面仿木纹的瓷砖法国灰木纹。橱柜采用亮光烤漆材质,便于后期的实际使用和打理。

卫生间的另一个角度,显示出浴缸的背景墙也用青蓝的瓷砖和对面的两个墙面做呼应,比例协调而不失大气。

卫生间为干湿分离独立空间,马桶和面盆背景采用比较温馨的青蓝色,其余墙面暗纹白做呼应,地面法国灰木纹。

主卧空间为靠人居住,背景墙的设计采用比较有生机的花纹图案壁纸,地面用的三拼玛宝木,衣柜亮光青蓝做过渡颜色。

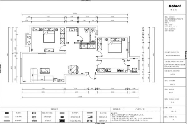
整体户型南北通透,通风采光良好,卫生间干湿分离,功能分区比较明显。原始布局比较合理,动线清晰。
网址:奥林匹克花园 现代简约 https://www.jiaju82.com/news-view-id-721872.html