芍药居 现代简约
发布时间:2020-09-17 11:01
案例详情 本案为老人为孩子准备的婚房,想法和要求都按着两位新人的要求去做设计,因为是北向的房子所有在沟通之初就建议了北欧风格,主要考虑北欧风格具有丰富的色彩,明快的采光,并且整体感觉很时尚,装修成本不会太高。

客厅整体颜色明快而富有层次,考虑北向的采光主色用了灰色和冷色,局部搭配暖色和中间色去贯穿,整体效果和谐统一。

主卧利用原有的部分家具去搭配整体房间的空间,樱桃色和亚光米黄的家具略显老气,通过灰色和浅绿的床头背景去协调原有的家具,整体效果简约时尚。

主卫空间定义为暖色调,米灰色大规格600*1200的瓷砖竖向拼接,黄金比例切割铺贴,让人站立时的视线落在整块砖上。

厨房整体色调简洁明快,便于打理。亮光的瓷砖、石英石的台面、博洛尼特有的超环保的聚酯粉末喷涂门板构成了厨房的基本元素。

老人房注重收纳和储物,利用房间面宽较宽的优势,在床对面做一排强大的收纳储物衣柜,电视嵌入到衣柜内。

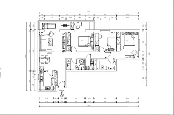
整体平面规划围绕合理动线和动静分区展开,客厅餐厅厨房客卫靠左,3个卧室靠右,相对独立和私密。
网址:芍药居 现代简约 https://www.jiaju82.com/news-view-id-721908.html