枫叶望海公馆|面朝大海,春暖花开,和喜欢的人一起慢慢变老
夜,临窗而坐
听风,享受静谧的美
与心灵来一场跨越躯体的对话
赏那片辽阔与浩瀚
面朝大海,春暖花开
对生活饱以热情、向往
就能拥抱美好
品茶望山
远大的抱负就要实现
人总是需要这样的空间
这样的场景
去什么都不做,静静地发会呆
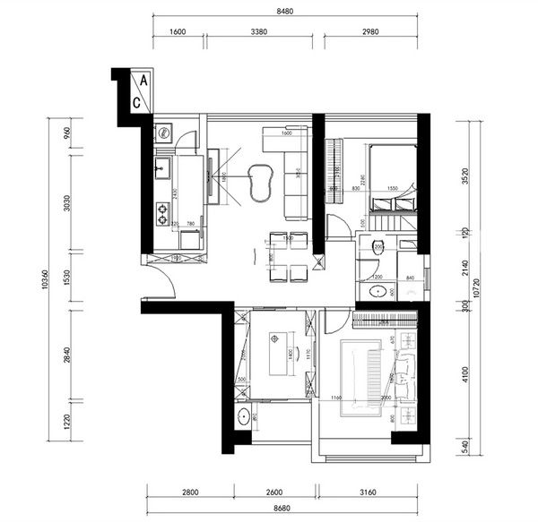
案例赏析|枫叶望海公馆B1
本案的房型南北通透,111㎡左右3房1厅1卫设计,自然从容大度;客厅朝北与餐厅畅达相连,拥有超宽观景飘窗,现代繁华尽收眼底。
玄关|装修设计参考
这个户型的玄关较短,与厨房相连,在与厨房共用的这一面做个通顶玄关柜,大面积竖开白色饰面与天花相连,拉伸视觉空间,仅留下换鞋位置作为开放区,更显整洁;
挂钩位置设计巧妙,将之安排在柜门侧边,这个“隐藏设计”可真为提升玄关的整洁度锦上添花,既不会看见挂物大小不一、乱糟糟地陈列,又不会让进出门常用的小物件无处可去。
厨房|装修设计参考
厨房为L型,光线充足,敞亮的厨房是一顿美食的开启按钮,美味在惬意的得心应手中细细烹饪。
客餐厅|装修设计参考
客厅连接餐厅,空间看起来更开阔通透,也将空间互借这个巧妙设计完美安放,家里需要更多空间时,把餐桌往边上一靠,餐椅挪挪,空间就变出来了。
另外配色上沿用空间主色调,作为墙面的木饰板选色、窗帘的选色,电视背景墙的装饰色,保持风格配色的协调统一,配以茶色高透圆状玻璃吊灯,有一种说不出来的高级感。
大片观景窗,将窗外的繁华尽收眼底,在家就能一览的山海美景,白天、黑夜别有一番滋味。
书房|装修设计参考
书房改成小卧室,榻榻米很实际,面向阳台,一个超宽的大飘窗诞生,一想到夜里拉开窗帘,躺在自家床上舒舒服服地看漫天星辰,就是件特别幸福的事。
主卧|装修设计参考
卧室里我们看见衣柜和玄关柜的配色材质相同,是延伸着的协调呀,按压开门的设计让进出梳妆台的路上少了磕磕碰碰,衣柜梳妆台的一体化设计将有限空间的利用率大大提升;
侧开展示柜可以放置些平时睡前爱翻阅的书籍,整理方便,得心应手。整体搭配有致又有质,彰显家主人的高雅格调空间,有品位的家是这样的让人赏心悦目。
长辈房|装修设计参考
家里长辈房怎么设计好?看过来!这里有范版。
第一眼看去,嗯这才是家,暖烘烘的。长辈辛苦操劳大半辈子,他们喜欢什么样的家呢?首先长辈房要考虑是舒适性,一是视觉舒服,二是居住体验舒服。
视觉舒适可以在房间配色上下功夫,比如本案的主色调,来自大自然的原木褐色,暖暖的,柔柔的,给空间营造来了舒适度极高的视觉享受;
居住体验的舒适度可以在空间的物件上下功夫,本案搭配的真皮全包床头大床,老人家坐靠不磕碰。
保留飘窗给老人睡不着的时候可以欣赏美景,早晨享受阳光,感受一天的美好~

楼盘名称:枫叶望海公馆
房屋面积:111㎡
房屋户型:3房2厅1卫
项目类型:全屋装
服务团队:名雕佰恩邦
注:图片源于名雕佰恩邦全屋装,侵究
全屋装的魅力在于设计方案从前期就经过了专业设计团队的严苛打磨,每一细节——从整体搭配、设计、实际价值等多方面出发考虑,打造一个完整的空间产品,全屋所见即所得。喜欢名雕佰恩邦全屋装可以扫描下方官方号关注、或直接拨打专线电话哦↓↓↓
网址:枫叶望海公馆|面朝大海,春暖花开,和喜欢的人一起慢慢变老 https://www.jiaju82.com/news-view-id-721926.html

