德胜佳苑 北欧
发布时间:2020-09-17 14:01
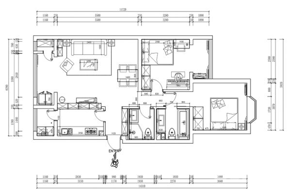
案例详情 此户型为两居两卫空间,客餐厅空间较大,2个卧室空间较小,南北双阳台。平面布局方案增加了门厅储物鞋帽柜,缩小了次卫的面积。利用厨房和客厅墙体的厚度增加厨房的收纳和设计。

现代北欧风格,浅灰色墙面,柔光地砖,柠檬黄跳色单椅的点缀构成了整个空间的色彩搭配。

方形卫生间为空间利用最高的布局方式,淋浴、马桶、面盆相对独立又相互联系。同一个空间内3个功能互不影响。

厨房设计要求简洁大方好打理。瓷砖选用高光的全瓷砖,橱柜材质为博洛尼特有的聚酯粉末门板,台面使用达克密瓷的材质。

整体暖气的瓷砖搭配深色的浴室柜,还有白色浴缸马桶做点缀形成空间的色彩阶梯。

儿童房的设计要求色彩纯度相对较高,形式多变而富有童趣的形式搭配让整个空间变大灵通而有趣。

三拼玛宝木地板和米灰色的墙面搭配百看不厌,深灰色的床头和洁白的床品让整个空间更富有高档的气质。

宽敞的客厅、紧凑的卧室。储物丰富的厨房,独立的客厅阳台洗衣区。相对便利的门厅储物门厅鞋帽柜。每个空间都很和谐和便利。
网址:德胜佳苑 北欧 https://www.jiaju82.com/news-view-id-721950.html