星杰装饰怎么样?被户型困扰多年的高知家庭这样回答
滨江·公园壹号叠墅在行业有口皆碑,是少有的高端项目。它近揽吾悦广场,坐拥立体高效路网,天汉长街比邻在侧,拥有众多优势的它,是高知家庭的不二选择。但滨江业主却长期被它的户型困扰,改善户型问题成了业主的首要诉求。星杰装饰怎么样,来看看星杰是怎么改善户型,解决业主难题的吧。

滨江·公园壹号是星杰的重点楼盘,星杰上海徐家汇分公司特为此成立专属的设计团队,深入研究户型,在实践中不断完善,现已形成了一套非常完善的户型改造方案。

下面,小编就为您带来滨江·公园壹号的户型案例。
主力户型1—下叠
这一案例夫妻二人入住,主要需求是敞开式空间,业主喜欢看书,需要很多书柜,二人喜欢年轻、时尚的风格。
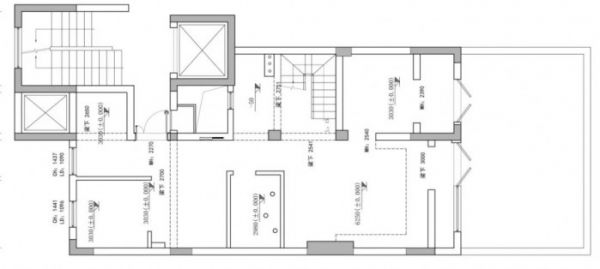
原始结构:
1.餐厅和厨房空间小而不通透,餐厨没法很好地发挥功能;
2.楼梯与卧室门位置不合理,走线不流畅,导致客厅电视背景墙不完整;
3.地下室阴暗,采光不佳,层高较矮,空间显得小而暗。
一楼原始结构图:

地下室原始结构图:

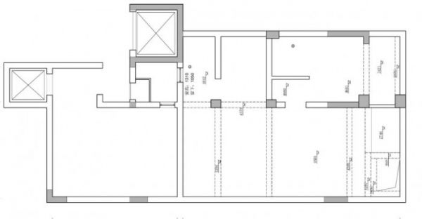
改造重点:
1.将入户衣帽间的位置改为厨房,开放式餐厅与厨房相连,增加通透度和连贯度,也使得客厅空间增大,一举两得;
2.改变楼梯和卧室门位置,完整了电视背景墙,同时避免了人在客厅看到卧室的尴尬局面;
3.为改变地下室层高不高的情况,设计师搭建一层并做了一层夹层,分别作为休闲娱乐和收纳功能。
一楼改造后:

地下室改造后:

除了上面户型的大改动外,星杰设计师依据业主的需求和生活习惯,在细节的设计上也处处为业主考虑。
男主人爱做饭,设计师中西厨结合的设计,让空间更具互动性,厨房与其他空间都互有联通,家人之间始终保持着交流,让下厨不单是一个人的“荒野行动”。
书房主色调为女主人最爱的绿色,根据主人的阅读习惯,摆放了两椅一桌,夫妻二人可在悠闲的午后共同阅读,静享二人的惬意世界。业主喜欢看书、藏书,整排书柜具有大大的收纳空间,满足主人收纳书的需求。
此外,设计师不单着眼于当下需求,还将未来的生活规划纳入设计考虑之内。设计师在未来儿童房的朝向、卫生间淋浴房的长度等细节处,都进行了调整,足以看出设计师的用心。


滨江·公园壹号的户型改造重点在于如何合理规划空间,让空间各个部分都充分有效利用。星杰装饰怎么样,星杰的全案不但能为业主解决户型难题,还能满足每个人的需求,最大程度提升居住舒适度,为客户构筑梦想家。
网址:星杰装饰怎么样?被户型困扰多年的高知家庭这样回答 https://www.jiaju82.com/news-view-id-724114.html

