大户型卫生间设计,教你如何用粉橙色让空间颜值爆表
简介:当极窄边雅黑淋浴房遇上明艳卫浴间,视觉十分悦人。
一个宝宝的诞生为家庭带来了什么?在往后的每一天,每一刻,宝宝在为父母和爷爷奶奶带来惊喜,宝宝的嘤嘤学语,每一次呼唤和微笑,都是世上最珍贵的礼物。

然而,有些宝宝不喜欢洗澡,一进卫生间便又哭又闹,每次都像是一场大战,全家人手忙脚乱来回折腾,还把卫生间搞得脏乱不堪,污水飞溅难以清理,我们该如何找到“宝宝洗澡”与“卫生间干湿分离”的平衡?
陈先生的刚结婚不久,新房也顺利完成交付,可谓是双喜临门。考虑日后孩子洗澡的问题,陈先生希望在浴室装修时以安全为重,同时外观不能太沉闷,于是他通过多方比对,最终选中了德立淋浴房SD4,并特别预约了设计师上门服务,对卫生间进行一次彻底的装修。
设计档案
客户:陈先生
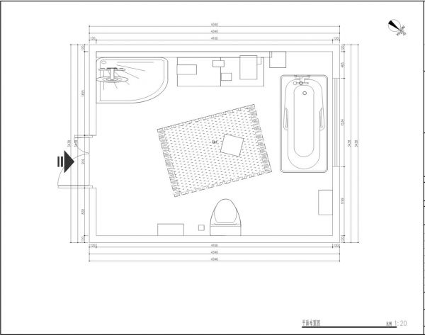
面积:约14㎡
要求:家有婴童,安全为重

设计思路
1/户型分析。这套卫生间是连接客厅的主卫,面积较大,全家人使用,适宜做功能区域三分离,考虑到孩童喜好的问题,可配置淋浴房+浴缸,同时中间还要在中间留出足够的空间,不能有任何障碍物,方便家长帮孩童洗澡。

2/浴具位置。淋浴房和浴缸用分开安装,帮孩子洗澡适合用容积大的浴缸,其他家庭成员在淋浴房洗澡;洗漱台、置物架和马桶都要隔开一定的距离,便于清洁;卫生间中间放置一块防滑地垫,保证安全。
效果呈现
德立淋浴房SD4的颜色风格有五种(亮银、雅黑、玫瑰金、拉丝玫瑰金、拉丝灰),在该案中设计师选择的是雅黑款,淡淡的橙色墙面与雅黑色淋浴房配合,使主次更佳分明,提升视觉感官。

淋浴房这一边全刷,而靠窗附近则充分留白,如此巧妙的搭配,瞬间将卫生间的颜值拉升了不止一个档次,既符合陈先生和家人的审美,又附有浓浓的生活气息,达到简约而美观的效果。

为了提升格调,洗漱台旁边特别放置了一盆植物,右侧再挂上一副画;洗漱台和置物台都悬空固定,用于放置洗发精牙刷毛巾等物品,同时不至于出现卫生死角;浴缸没有菱角,避免孩子撞伤或划伤,旁边放置简易的架子,放置一些玩具和杂物。

在干湿分离方面,SD4是绝对的防水功臣,山字型侧材结构让卫生间多一重防水屏障,解决了地面湿滑的问题,底轨的设计降低了3°斜坡平面,去水更快无积水,不滋生细菌,保持卫生间干爽卫生。

斜坡底轨

山字形侧材
SD4具有30mm的窄边框材,在保证安全的前提下,收窄边框线条带来的视觉障碍,使卫生间整体更加通透,大气简洁,浑然天成,成为该卫生间的又一大亮点。最终,一套温馨而充满现代气息的卫生间,得以完美呈现!

客户评价

陈先生:“这套卫生间的设计实在出乎我的意料,整体空间宽敞明亮,视觉开阔,颜色鲜明有序,大人看着很舒服,孩子也很喜欢。各个分区科学设计,进出自如,给孩子洗澡时手忙脚乱也不会磕到碰到,真的十分满意。”
设计师:“明而不鲜,简而有致,是我贯穿全程的设计思路。这套卫生间的户型很大,但并不意味着浴具越多越好,而是适度保留空余空间,让空间看起来更加宽敞有序,让淋浴的时光更加自由无拘束。另外在颜色的选取上,为了与极简雅黑色系的淋浴房更加合拍,选用淡橙色就非常适合,毕竟过于鲜艳反而容易形成视觉疲劳,对于色彩的运用点到为止,适度即可。”
网址:大户型卫生间设计,教你如何用粉橙色让空间颜值爆表 https://www.jiaju82.com/news-view-id-724805.html

