2020「酷+创造营」先锋设计师选拔-孙广睿《黑镜》
发布时间:2020-10-26 18:31
“设计新发声,与大师演绎梦想”,由酷家乐联合新浪家居共同打造的 2020「酷+创造营」年度先锋设计师选拔,旨在打造设计界的“创造101”,携手陈暄、宋微建、韩文强、高志强、罗灵杰等当下中国设计界大师,加速设计大师预备役成长过程,打造专属中国先锋设计师成长的助力平台。
大赛自4月启动,组委会收到来自全国各地设计师的参赛作品。以下为参赛选手的设计作品。
♦ 参赛设计师:
孙广睿
上海傲石设计咨询有限公司
♦ 参赛作品:
设计名称:《南京绿地云都会A3样板间 》
项目地址:江苏南京
♦ 设计说明:
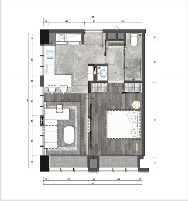
本项目为位于南京金马路地铁上盖的TOD公寓样板间,以探索未来年轻人生活方式为目的,打造智能科技的生活方式
案例解读:双动线的空间规划,为空间趣味及交互创造了更多的灵动性,三维空间的组合穿插感,不禁感觉像一场对未来生活的星际穿越,游离于空间之外的空间。同样的Box理念,有别于A1户型,如果说A1的Box是二维的平面,A3户型更多是三维空间的组合穿插。运用几何概念将方整空间破局,视空间为一座方形盒子,盒子的中轴线规划为开闭式电视墙,卧房区经由玻璃材质的穿透感营塑空间层叠的趣味性。《黑镜》探索未来科技对人的改变,我们也加入了智能化科技产品,探索未来年轻人的生活方式,同时黑镜这一材料的应用,也是致敬《Black Mirror》
♦ 作品展示:

平面图

2020「酷+创造营」先锋设计师选拔大赛报名方式
关注“家居情报站”公众号
输入“我要报名”
获取更多报名相关信息
网址:2020「酷+创造营」先锋设计师选拔-孙广睿《黑镜》 https://www.jiaju82.com/news-view-id-726953.html

