【天健天骄】寻一处安身之所,构一方品质人家
天健天骄
集世之雅,承时代之贵
揽山悦湖,园林入画湖造景
大师联袂,锻造东方美学人居
书香环绕,传承儒雅学风
诗意栖居,身心回归自然
探析雅居
品赏福居宝地,设计匠心
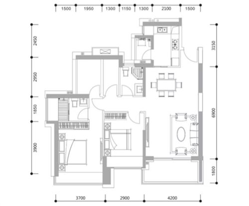
▲B座2单元03户型-122㎡
户型方正,空间精巧灵动;入户迎面即风景,舒缓疲劳,带来极致好心情;厨房链接阳台,舒心惬意,主卧私享阳台大飘窗双景,品赏夜色纵享海阔天空,一户三阳台设计,生活与休闲任意切换,舒适理想人居。
▲B2单元04户型-90㎡
敞阔阳台,入户即揽风景;客餐厅一体化,通透宽敞,各功能区间合理布局,宽松有度;次卧L型环抱飘窗,簇拥风景,尽享白日与夜色的美。舒适双阳台设计,畅享惬意自在人生。
得天独厚,正统奢邸基因
户型周正合理,舒心宜居
懂你的生活、在方方面面
高雅之士,如何正确打开理想家生活?
美好品质范——名雕佰恩邦全屋装
从一个用心装饰的家开始———
追求更精致轻奢的空间
也重视生活的质感
选用科技布拼棉麻布款沙发
线条流畅,亲肤自然
无主灯设计让空间显得更通透
2020大火流行色-摩卡
错落有致地铺陈在空间里
散发的独特气质与优雅
厨房门做窄边极简推拉门
门洞与家中门窗高度看齐
拉伸视觉显阔气
天然大理石桌承重力大
耐高温耐磨耐腐蚀
可伸缩设计
桌面自由切换大小
舒舒服服地饱餐一顿
精致美学空间
秉承名雕佰恩邦全屋装
重装饰,轻装修的原则
让家装更美更环保
从色彩的精心调制、材质选择
光的运用,到人体工程学
目光所及,美不胜收
在整体空间的主色调上
加入活泼的色彩元素
利于儿童智力开发
收纳功能的设计必不可少
衣柜书桌榻榻米一体化设计
可以藏下多少童年的宝藏
这可都是他日后珍贵的回忆啊
床靠为可拆洗软包设计
床头柜为圆角设计
衣柜无把手设计
飘窗配同色系软垫
走过不磕碰,触及皆柔软
全面呵护老人的身体
贴心为您将孝心融入生活

网址:【天健天骄】寻一处安身之所,构一方品质人家 https://www.jiaju82.com/news-view-id-727254.html

