龙樾华府 奢华
发布时间:2020-11-19 10:01
案例详情 白与灰的设计使客厅明亮而宽阔,浑然天成的石材纹理自带原始质感之美,用抽象引出深远意境,气势恢弘而不张扬,蕴含十足感染力与张力。陈设以富有艺术感的抽象挂画点缀,在古韵盎然中流露出些许的现代气息。充足的空间也可静居一隅独自冥想静思;也可邀上三五知己,品茗赏景,恣意畅谈。

电视背景墙采用了半悬高墙的设计,视觉开阔,室内动线比较灵活,也起到了划分空间的作用。整个客厅灰白呼应,色调统一,个性且不失格调。

次卧的背景墙使用了整面的木饰面的栅格装饰墙面,下节白色建筑也起到了呼应背景造型的作用又不显得喧宾夺主。

主卧区域的木色与背景的灰白色,一暖一冷,层次感鲜明。背景墙上的建筑装饰画,成为空间中独一无二的视觉亮点,充分体现一个建筑者内心的独白。

在白色中融入的木色与酒红色让空间更加温暖,也意外的柔和了空间的棱角和冰冷。惊喜地收获一场触及灵魂的美好感受,它代表的不仅仅是一种风格,更是一种高品质的生活状态。

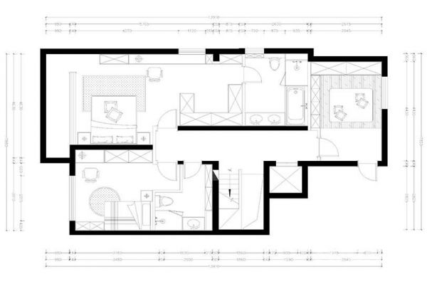
地下室安静,且光线不足,该层设计主要以功能性为主,增加大量储物空间,节省上层空间压力,影音室的增设,让生活更有情趣。

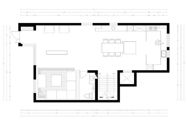
于静简与清欢之间,平添乐趣,拆除该层所有隔墙,增加空间通透感,不管是家庭聚会还是朋友聚餐,都是不错的选择。

动与静完美结合,借助原始楼层规划,将客厅的动感与卧室所需的静态分割,将所有休息区放于该层,演绎出更加轻盈、远离喧嚣、接近自己、精致的生活态度。

原户型的建筑结构业主不是很满意,对空间的通透性方面有强烈的希冀。从新规划后客厅、餐厅、厨房整个空间连城一体,去繁就简求其空灵,增强空间的通透感。
网址:龙樾华府 奢华 https://www.jiaju82.com/news-view-id-730733.html