70㎡ 高级黑公寓, 这么多储物空间够用
发布时间:2020-11-19 10:01
案例详情 在小户型的家里,核心动线的规划左右了家庭生活的中心以隐藏式收纳美学为基础,化繁为简赋予70㎡小家高级的现代感,厨房中岛对面,沿着带有窗户的外墙,设有一个长长的沙发,下面有隐藏的储物格定制的坐垫和色彩明快的抱枕,使这里变成了舒适的休闲区,电视的两侧各有一扇隐藏门,分别通向更衣室和洗衣房父母卧室选用较为。温柔的暖色系,软包饰面拼成竖条带有一种明快的肌理感床头上方设有一排带镜面的吊柜,额外增加收纳空间卫生间选用黑色哑光六角瓷砖,与木纹的肌理形成碰撞。

一张木质长餐桌,造型简单实用 这里是家庭成员 轻松交流、吃点心的地方 是家的核心区域

白色料理台 同时还具备小型吧台的功能 侧面的木格子 是用来放酒的简易酒柜

起居室和厨房、餐厅并列位于整个房间的中央与中岛相连的

入口玄关设有 内凹式座榻,方便进出换鞋 对面是带有镜门的衣柜 能在视觉上扩大空间尺度

儿童房的设计更为巧妙 将墙壁和门都涂有板岩涂料 让孩子可以用粉笔在其上涂鸦

开放的区块设计 加上明晰的色块组合 让餐厨区功能与质感兼备

白色操作台 与贴着六角瓷砖的 防溅板、吊柜连成一片 对比强烈清晰

阳台与卧室之间 以滑动玻璃门相连,开放性更好

干湿分离的设计符合使用习惯浅灰色瓷砖与木饰面 组合,更加凸显现代质感

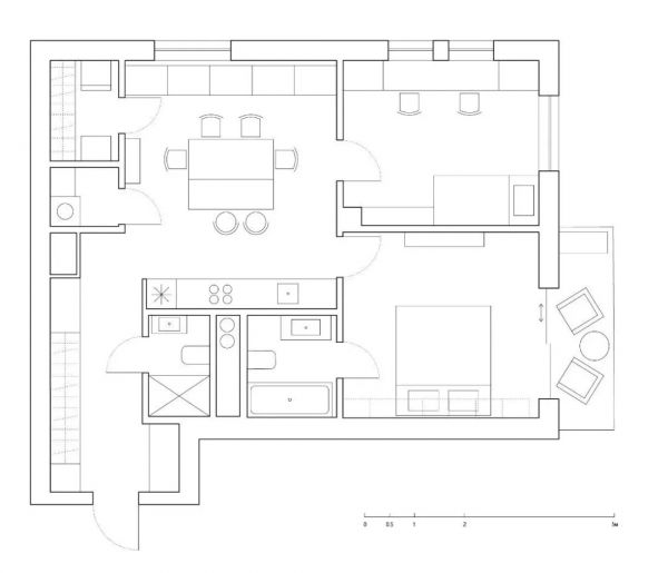
先来看看平面图 开放的厨房占据公寓中心位置 两间卧室位于 右侧,主卧套房还带有独立卫浴 和小阳台,客厅当中 另设公共卫生间、储藏室
网址:70㎡ 高级黑公寓, 这么多储物空间够用 https://www.jiaju82.com/news-view-id-730737.html