137㎡简约北欧风,清新淡雅!
发布时间:2020-11-19 14:00
案例详情 北欧风格以其简单而著称,并影响到后来的"极简主义"、"简约主义"、"后现代"等风格。北欧风格风格家居,浅色、干净、清爽的感觉使家庭空间完全凉爽。客厅的布局重点集中在家具的选择以及颜色和织物的匹配上。和谐和对称的技巧使布局的每个细节都感觉舒适。

女儿房简约的同时也没有失掉优雅,纯净自然的舒适,迎合了小女孩天真可爱单纯的天性之外,空间整体并不受孩子年龄阶段的限制,同时大量的收纳柜和书架让室内不失生活机能。

客厅的色彩搭配以浅灰原木为主色调,以蓝色或灰蓝色点缀空间,而绿植则让整个空间焕然一新,充满了活力和生命力

设计师在厨房选用tiffany蓝和白色搭配,梦幻纯真的色泽,给室内的空气似乎都增添了一份精致摩登的清新感。一个精致有爱的厨,亲手烹饪的美食都在这里实现,都会让人在深感幸福和生活的美妙。

玄关位置非常简约,清晰的线条,简洁的色调,显得美感十足。旁边是一排色系收纳柜和房间门在线条上相呼应,也显得空间轻盈起来。

巧妙利用阳台作为休闲空间,惬意和温暖,便是干净明快的空间格调,光线明亮而柔和,令身心愉悦。或是,午后打在身上的一束阳光,过一段慵懒的日子。

主卧采用清新色调的搭配下,呈现出一个温文尔雅的浪漫氛围。大面积的采光使卧室的光线充足,营造温柔而明媚的空间氛围,置身其中能感受到满满的惬意与放松

卫生间灰色花纹地砖与白色墙砖搭配,在通透的玻璃隔断下,整个空间都显得简约而干净大方

客厅的莫兰低色彩搭配以浅灰原木为主色调,以浅灰点缀空间,而绿植则让整个空间焕然一新,充满了活力和生命力。静动之间,悄然犹如身体自然在空气中的一呼一吸。

公卫现代简约风,整体整洁、清新,地板上的花纹磁砖设计独特又有创意,与浴室整体的颜色和格调融合的刚刚好。

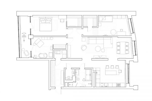
137平米三居室简约北欧风,整体比较通透,喜欢的可以借鉴
网址:137㎡简约北欧风,清新淡雅! https://www.jiaju82.com/news-view-id-730799.html