122平米北欧风格装修案例

跳跃而欢愉的色彩搭配,是这个空间的特点,也是设计师力楚一贯大胆独到的用色手法的再次明证。在温暖米色和淡雅灰色的主背景色中,红与蓝、柠檬黄的冲撞对比,被有度地填充于落地窗帘、家具直至小的配饰物件。整个空间在冷暖色调的晕染间展示着明快的气质,也将生命的活力渲染得淋漓尽致。令人无处不感受到这个家中的春日气息,心情也连带着雀跃了起来。

在组合上注意空间搭配,充分利用每一寸空间,且不显局促、不失大气,尤其多采用开放式自由空间;在选色上,一般选择自然的柔和色彩,集装饰与应用于一体;在柜门等组合搭配上避免琐碎,让人处处感受到浪漫主义气息和兼容并蓄的文化品位

舒适的空间里石材的大量运用赋予了这个空间独特的稳重感,也有充足的舒适感。

希望每个孩子都能成为一个幸福感特别强的人,就像春天的小树一样,生机勃勃、充满可能。

古波斯作家萨迪于《蔷薇园》中有言,“凡是心中所喜欢的,看来总是最美”。卧室设计师利用色彩对比与矛盾所产生的反差,寻找另一种极致的宁静。

与其他空间不同,厨房是一个简洁大方的空间,一个掌厨的空间需要简洁的颜色简洁搭配,复杂的颜色搭配会让身处厨房的人感觉到杂乱。家是什么呢?对业主来说,家就是让你待着很舒服的地方,有风、有水、有树、有家人。无论在何种境遇下,承载在家中的情感和记忆的温度都能够让自己从太用力、太紧绷、太焦灼的残酷现实中抽离出来,缓缓地喘上一口气——放松、呼吸,因为你知道自己还有后盾,还有家

家是什么呢?对业主来说,家就是让你待着很舒服的地方,有风、有水、有树、有家人。无论在何种境遇下,承载在家中的情感和记忆的温度都能够让自己从太用力、太紧绷、太焦灼的残酷现实中抽离出来,缓缓地喘上一口气——放松、呼吸,因为你知道自己还有后盾,还有家。

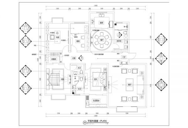
【户型图】 简单与纯粹静与优雅犹如那慢慢化开的涟漪给单调的生活激荡出一丝期许这才是人真正需要的这才是是最奢华的空间 猜你喜欢 单身男的loft公寓 这样设计简直潮爆了!
网址:122平米北欧风格装修案例 https://www.jiaju82.com/news-view-id-730897.html