将空间、人及物进行合理精致的组合
发布时间:2020-11-20 10:01
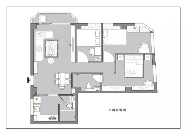
案例详情 这是一套建筑面积78平米的现代风小户型三居室案例,房子原本的格局是比较宽敞的二居室,但屋主一家人却需要三间卧室,所以把次卧和主卧进行了巧妙的更改,缩减了每个卧室的空间,让这个家变得更加实用!删繁就简,去伪存真,以色彩的高度凝练和造型的极度简洁,在满足功能需要的前提下,将空间、人及物进行合理精致的组合,用最洗练的笔触,描绘出最丰富动人的空 间效果,这是设计艺术的最高境界。尽可能不用装饰和取消多余的东西,认为任何复杂的设计,没有实用价值的特殊部件及任何装饰都会增加建筑造价,强调形式应更多地服务于功能。

主卧的衣柜被放在了床尾的地方,设计师为了满足屋主梳妆打扮和工作的需求,在衣柜当中留出了一部分的工作区。

客厅的沙发背景墙是铺贴了大理石瓷砖,橙色的皮沙发让客厅看起来更有档次,沙发、茶几的款式都不复杂,延续了整体简洁的装修风格。

通往卧室的走廊过道,也是延续了客餐厅的灰色瓷砖家波导线的设计,上方的吊顶也加了一圈装饰线条,上下呼应看起来简洁又大方。

卧室的面积都不宽敞,床加上两个床头柜就占满了整个主卧,床头两侧的壁灯,款式非常有趣,让人感觉卧室多出了一些时尚感。

儿童房的面积最小,床、床头柜和衣柜紧靠在一起,飘窗同样改成了书柜储物格,整体白色为主的设计,让人感觉更加简单舒适。

餐厅边上就是客厅空间,电视背景墙做了满墙的定制柜,地面铺贴的灰色地砖是齐家小菜非常喜欢的款式,让客厅更加明亮和轻松。

入户没有玄关走廊的户型,设计师在入户门的侧方摆放了矮鞋柜,后方做上木饰板装饰。入户门对着的是餐厅,轻便的铁艺餐桌给客餐厅带来现代时尚感。

此户型空间划分清晰明确,格局搭配得当,空间利用合理,居住方便。
网址:将空间、人及物进行合理精致的组合 https://www.jiaju82.com/news-view-id-730994.html