102㎡ 卧室这样的规划,空间设计出来
发布时间:2020-11-20 17:01
案例详情 现代简约风格是近年来流行的风格,装饰效果简洁但不单调。简约风格的装修是精简房屋各部分的设计,精简的设计空间通常是含蓄的,可以达到以以少胜多、以简胜繁的效果。现代简约风格的另一个特点是注重实用性。在家具配饰方面,主要是实用和功能性的,并且不会花很多心思在花哨装饰品上。过多的花哨装饰品,例如桌子上的许多小装饰品,不仅不会增加装饰效果的美感,反而会破坏现代简约的整体风格。

客厅选用木质地板铺设 灰色沙发呈 L 型摆放 黑色的边桌作为茶几使用 方便移动又不占空间

公寓内没有安装电视 白色的电视柜和艺术画 在木质的背景墙的衬托下 显得更加轻巧

餐厅在厨房旁边 圆形的餐桌搭配蓝色的餐椅 顶部选用三盏吊灯照明 渲染出温馨、浪漫的用餐氛围

软包床头柜非常有特色 墙面上的木条装饰与黄铜吊灯相呼应 在视觉上也有拉伸层高的作用

衣帽间利用衣柜做隔断 设在主卧的一边 收纳空间大,还有很好的私密性

卧室的布置比较简单 蓝色的窗帘与白墙形成鲜明的颜色对比 简约的设计,柔和的配色 组成一个舒适睡眠空间

儿童房以白色、粉色、绿色为主 定制的床与沙发相连 不管是坐着还是躺着都很舒适

阳台作为办公区使用 拉上窗帘就是一个封闭空间 在不受打扰的环境中 能更高效的完成手上的工作

卫生间的布局很紧凑 灰色瓷砖铺贴墙面 看起来有一丝冷峻感

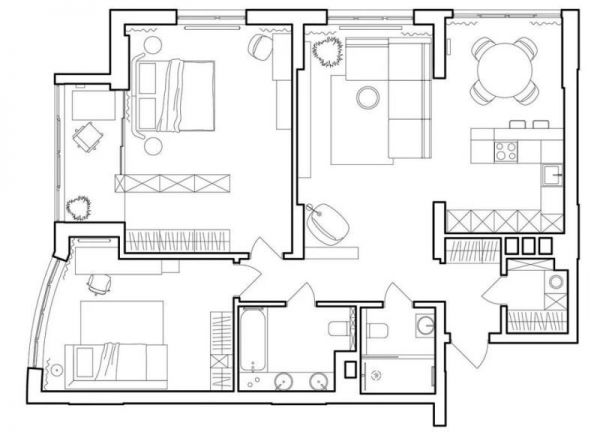
【户型图】 在整个空间处理上强调了简约质朴 选用的材料和配色也较中性
网址:102㎡ 卧室这样的规划,空间设计出来 https://www.jiaju82.com/news-view-id-731139.html