北欧·生活的温暖
发布时间:2020-12-02 15:01
案例详情 空间整体以颜色以墨绿色、白色和原木色为主,在用灰色鹅黄色来点缀局部,阳台落地窗和客厅大面积的白色是北欧的典型搭配,乳白色带点朦胧视感的额落地窗,大面积的文化砖和分子,魔豆灯的搭配,增加采光的同时还显得格外明朗干净。

地板和沙发的灰色是空间中颜色的过渡与调和,墙面则跳脱的选择绿色,更加贴近自然且不失简洁。顶面没有过多的复杂造型,利用叠级线条增加空间的层次感;黑色明装的轨道灯与白色的顶形成对比,简洁而不复杂。

卡座的设计是餐厅的一大亮点,增加储物的同时也让空间更加的宽阔,鹅黄色的抱枕和墨绿色背景墙给人不一样的温暖。

厨房以北欧为主,色彩明亮,粉灰色的柜子搭配白色的墙砖,喜欢这里的洁净,也同样喜欢这里的烟火气。

格局的布置凸显个性化,在也不用担心无处安放的物品啦!不经意间的遮丑技能给99分。迎合现代舒适的生活主题,卫生间设计了简单流畅的浴房

深蓝色让空间显得格外宁静,宁静入怀,温暖才能入心。生活的本与真,是你蜕变之后看到的原形,是生命历练之后的灵与魂。携手而眠,相伴到老。由浅入深的氛围,恰如岁月的变迁,爱情愈见浓郁,亲情不见底。

愿美梦如影随形。卧室选择留白和灰色调,更像是一种平静的回归,气度和氛围留给窗外的光和影,晴天与雷暴。

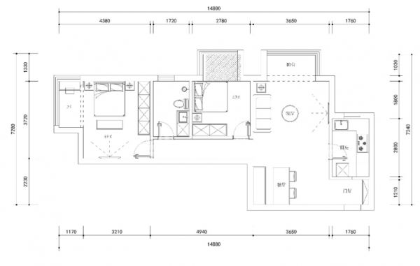
户型方正、空间通透,卧室都带有独立阳台,空间可变性大,有独立的生活阳台和休闲阳台。
网址:北欧·生活的温暖 https://www.jiaju82.com/news-view-id-732769.html