68平馨港庄园韩式田园混搭
发布时间:2020-12-02 15:02
案例详情 业主需求:婚房,要求使用而且温馨设计理念:以韩式田园风格为主,同时融入了地中海风格预算说明: 预算10万元

餐厅

餐厅

客厅

客厅

客厅

客厅

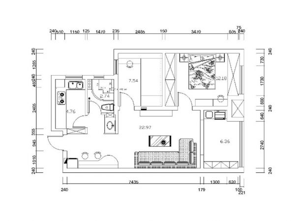
户型图
网址:68平馨港庄园韩式田园混搭 https://www.jiaju82.com/news-view-id-732775.html